Mẫu nhà ống 5 tầng hẹp ngang tối ưu công năng vừa ở vừa kinh doanh
- Diện tích: 230 m²
- Phòng ngủ: 6
- Số tầng: 5
- Tầng hầm: 0
- Khách hàng: Anh Bảo
- Địa chỉ: Hà Nội
- Chi phí xây dựng: 1,3 tỷ
- Tổng chi phí: 1,8 tỷ
Mô tả dự án
Với diện tích chỉ 46m² mỗi sàn, ngôi nhà 5 tầng của anh Bảo là minh chứng rõ nét cho khả năng tối ưu không gian của ATX HOME. Dù diện tích khiêm tốn, công trình vẫn đảm bảo công năng đầy đủ với 6 phòng ngủ, khu vực kinh doanh, sinh hoạt chung và phòng thờ riêng biệt.

Kiến trúc hiện đại, tinh gọn mà nổi bật
Mặt tiền ngôi nhà được thiết kế theo phong cách hiện đại, chú trọng tỷ lệ và sự cân đối hình khối. Tông màu trắng chủ đạo kết hợp với mảng ốp đá đen tầng trệt giúp công trình vừa nổi bật vừa sang trọng.
Các ban công nhỏ bố trí sole nhẹ tạo cảm giác mặt đứng sinh động, không nhàm chán. Hệ cửa kính lớn giúp lấy sáng tự nhiên tối đa cho các tầng trên, đồng thời mở rộng tầm nhìn ra không gian bên ngoài – yếu tố rất cần thiết đối với nhà phố hẹp ngang.

Mặt bằng công năng tối ưu không gian sống và làm việc trong diện tích nhỏ
Tầng 1 – Kinh doanh và khu để xe
Không gian tầng 1 được chia hợp lý gồm:
-
Khu vực kinh doanh 9m² hướng ra mặt tiền, thuận tiện cho thuê hoặc buôn bán nhỏ.
-
Nhà xe 25m² phía sau, đủ chỗ để nhiều xe máy, có lối di chuyển tách biệt, đảm bảo an toàn.
-
WC 1.6m² gọn gàng, tiện lợi khi sử dụng.

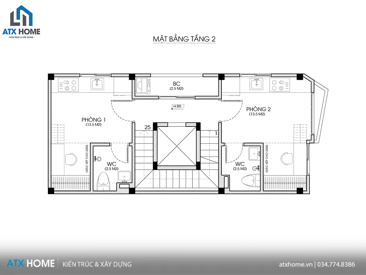
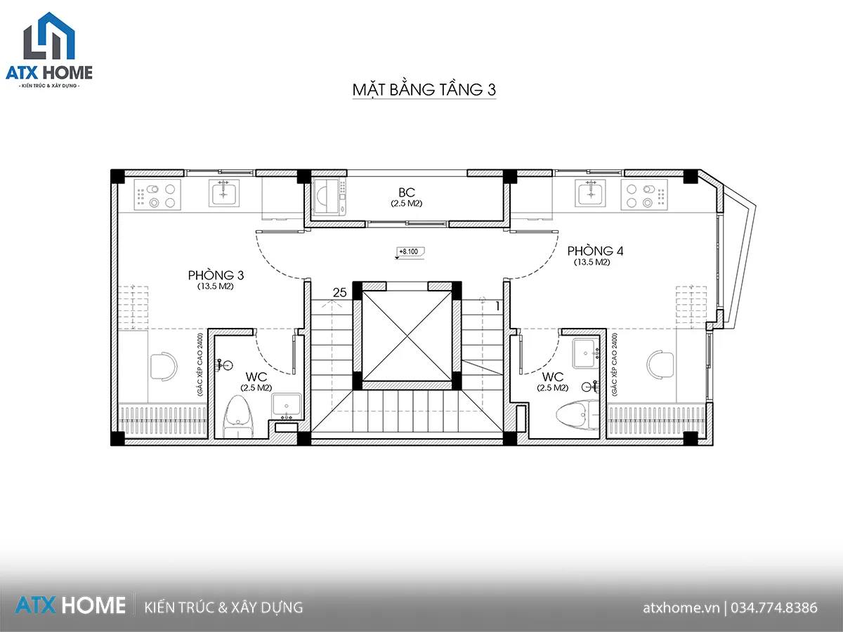
Tầng 2 & 3 & 4 – Các tầng phòng cho thuê hoặc sinh hoạt riêng
Ba tầng này có thiết kế tương tự nhau, mỗi tầng gồm:
-
Hai phòng khép kín (mỗi phòng ~13,5m²) có WC riêng 2.5m² và khu bếp nhỏ, phù hợp để cho thuê hoặc làm phòng riêng cho các thành viên trong gia đình.
-
Ban công nhỏ 2,5m² giúp tăng đối lưu không khí và ánh sáng tự nhiên.
Cách bố trí này giúp khai thác tối đa công năng trong diện tích nhỏ, đồng thời vẫn đảm bảo riêng tư và tiện nghi.



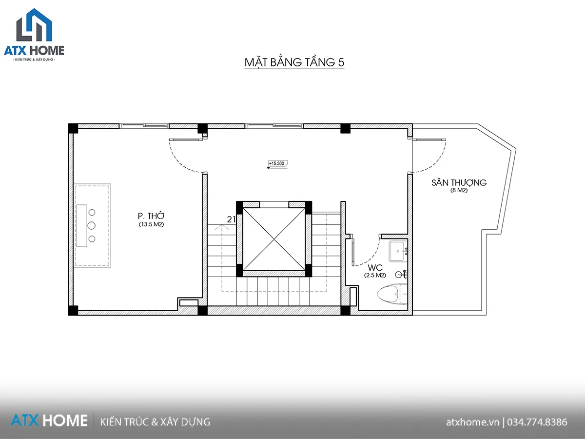
Tầng 5 – Không gian thờ cúng và sân thượng
Tầng trên cùng được bố trí:
-
Phòng thờ 13,5m² trang nghiêm, có hướng nhìn thoáng.
-
Sân thượng 8m², nơi gia chủ có thể trồng cây, phơi đồ hoặc nghỉ ngơi.
-
WC riêng 2.5m² phục vụ nhu cầu sử dụng linh hoạt.

ATX HOME – Tối ưu giải pháp thiết kế cho nhà phố diện tích nhỏ
Với nhiều năm kinh nghiệm trong thiết kế và thi công nhà phố, ATX HOME hiểu rõ đặc trưng của những lô đất nhỏ, hẹp ngang, hoặc nằm trong khu dân cư đông đúc.
Đội ngũ kiến trúc sư của chúng tôi luôn đặt tính thực tế và khả năng sử dụng lâu dài lên hàng đầu trong từng phương án thiết kế. Không chỉ giúp gia chủ tối ưu công năng, lấy sáng – thông gió tự nhiên, ATX HOME còn chú trọng thẩm mỹ mặt tiền và chi phí thi công hợp lý, đảm bảo công trình vừa đẹp, vừa tiết kiệm, vừa dễ bảo trì.
Nếu bạn sở hữu lô đất nhỏ nhưng mong muốn một ngôi nhà tiện nghi, đa công năng và có thể khai thác kinh doanh, ATX HOME sẵn sàng giúp bạn hiện thực hóa mong muốn đó. Bạn hãy liên hệ với chúng tôi theo số Hotline: 034.774.8386.

