Mẫu nhà lô phố 3 tầng cực đẹp & tối ưu cho lô đất hẹp ngang 4,3m
- Diện tích: 200 m²
- Phòng ngủ: 4
- Số tầng: 3
- Tầng hầm: 0
- Khách hàng: Chị Nụ
- Địa chỉ: Hải Dương
- Chi phí xây dựng: 1,2 tỷ
- Tổng chi phí: 1,5 tỷ
Mô tả dự án
Giải pháp tối ưu không gian cho nhà phố diện tích hẹp
Với mặt tiền chỉ 4,3m, ATX HOME đã lựa chọn kết cấu khung bê tông chịu lực linh hoạt, cho phép bố trí không gian mở mà không cần nhiều cột giữa nhà. Hệ thống cửa – giếng trời – cầu thang giữa giúp lấy sáng tự nhiên, tiết kiệm năng lượng và giữ luồng gió đối lưu xuyên suốt ba tầng.
Cách tổ chức không gian này giúp ngôi nhà vừa thông thoáng, vừa giảm cảm giác chật chội, đặc biệt phù hợp cho những khu đất liền kề, mặt phố hẹp như của chị Nụ.

Kiến trúc hiện đại, nhấn mạnh vào tỷ lệ và ánh sáng
Mặt tiền ngôi nhà được thiết kế với đường nét bo cong mềm mại, giúp tổng thể không bị cứng khi xây trên lô đất hẹp 4,3m. ATX HOME sử dụng tông trắng chủ đạo kết hợp ốp đá và gỗ nhựa trang trí, tạo nên vẻ ngoài hiện đại, sang trọng mà vẫn ấm cúng.
Hệ cửa kính nhôm xingfa cao sát trần giúp không gian nội thất nhận được ánh sáng tự nhiên tối đa, đồng thời tạo cảm giác rộng và thoáng hơn. Ban công tầng 2 và tầng 3 được thiết kế đan xen lam gỗ và mảng xanh, vừa tăng tính thẩm mỹ, vừa giảm nắng gắt hướng Tây – một giải pháp kỹ thuật được ATX HOME tính toán phù hợp với khí hậu miền Bắc.
Mặt bằng công năng chi tiết
Thiết kế công năng của ngôi nhà tập trung vào sự thông suốt, tiện nghi và riêng tư cho từng thành viên.

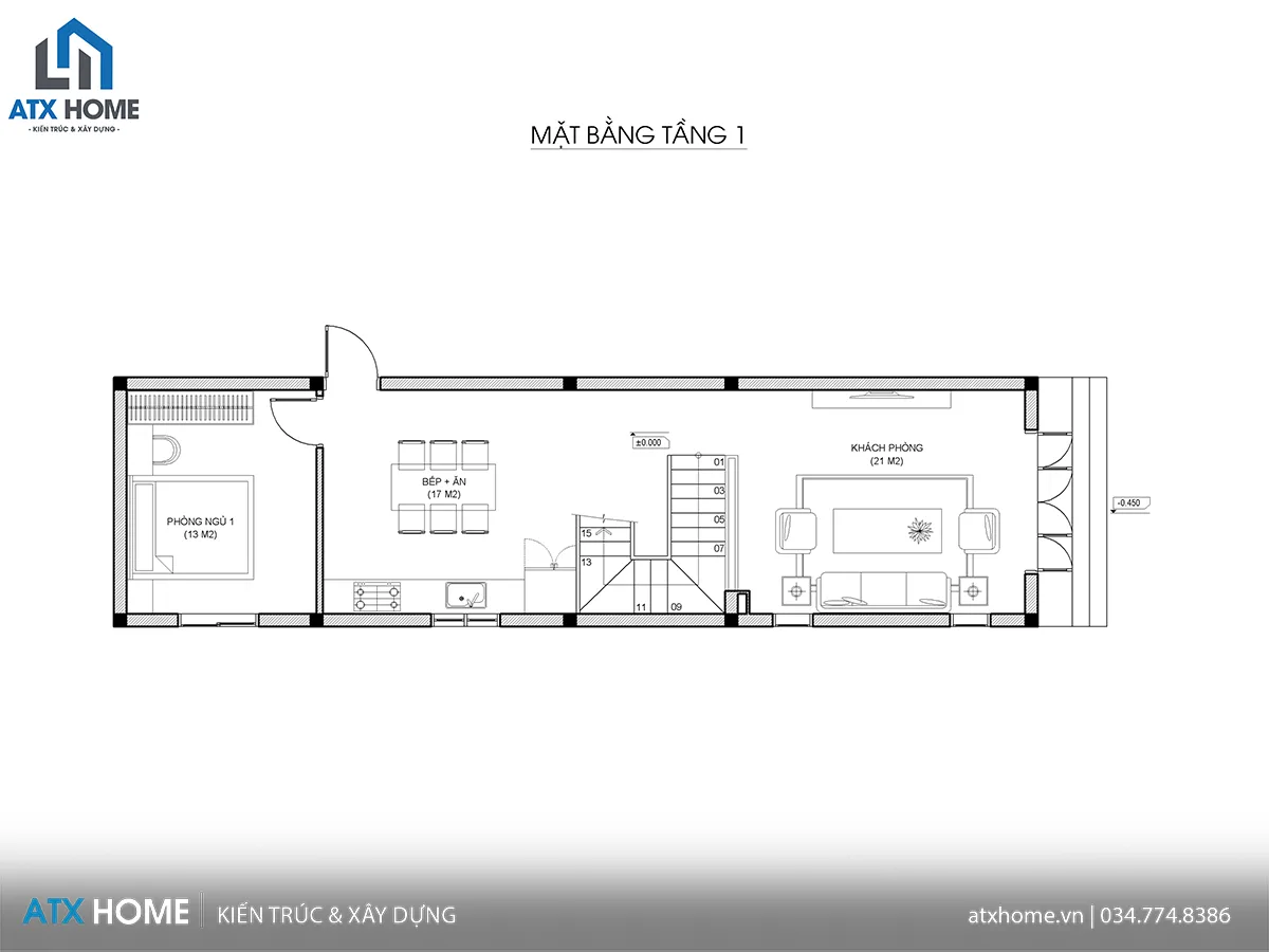
Tầng 1
Không gian tầng 1 gồm phòng khách (21 m²) liên thông bếp ăn (17 m²), giúp sinh hoạt chung thuận tiện và đón sáng liên tục. Phía sau là phòng ngủ 1 (13 m²) dành cho người lớn tuổi, tiện di chuyển và gần khu vực sinh hoạt.

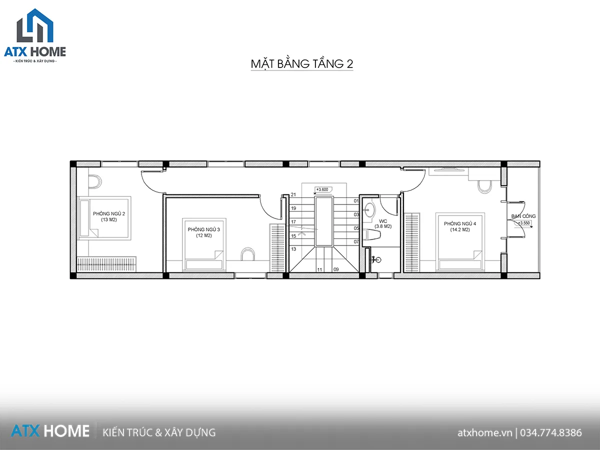
Tầng 2
Bố trí 3 phòng ngủ (13 m², 12 m² và 14,2 m²) cùng 1 WC chung (3,8 m²). Mỗi phòng đều có cửa sổ lớn, đón gió đối lưu giúp không gian luôn khô thoáng – một điểm cộng trong thiết kế nhà phố diện tích hẹp.

Tầng 3
Gồm phòng thờ (9 m²), kho nhỏ, và sân phơi rộng 17 m². Phòng thờ được đặt hướng hợp mệnh gia chủ, đảm bảo yếu tố phong thủy và sự tôn nghiêm.

ATX HOME – Đơn vị thiết kế & thi công trọn gói chuyên nghiệp
Với nhiều năm kinh nghiệm trong thiết kế nhà phố và thi công trọn gói, ATX HOME luôn đảm bảo:
-
Bản vẽ thiết kế chi tiết, tính toán kỹ từng hạng mục kết cấu.
-
Thi công chuẩn kỹ thuật, đúng tiến độ và đúng chi phí cam kết.
-
Bảo hành kết cấu 50 năm, bảo dưỡng định kỳ sau bàn giao.
ATX HOME không chỉ mang đến một bản thiết kế đẹp mà còn là giải pháp thi công tối ưu, đảm bảo giá trị sử dụng bền vững lâu dài. Hãy liên hệ ATX HOME theo số hotline 034.774.8386 gửi diện tích đất và nhu cầu sử dụng của bạn, ATX HOME sẽ giúp tối ưu phương án phù hợp cả về công năng và chi phí.

