Mẫu nhà ống 3 tầng hiện đại kết hợp sân chơi thư giãn tại Đan Phượng
- Diện tích: 220 m²
- Phòng ngủ: 5
- Số tầng: 3
- Tầng hầm: 0
- Khách hàng: Anh Dũng
- Địa chỉ: Hà Nội
- Chi phí xây dựng: 1,3 tỷ
- Tổng chi phí: 1,6 tỷ
Mô tả dự án
Mẫu nhà phố 3 tầng do ATX HOME thiết kế và thi công trọn gói cho anh Dũng là minh chứng cho sự kết hợp hài hòa giữa công năng thực tế, thẩm mỹ hiện đại và kỹ thuật xây dựng chuẩn mực.

Giải pháp thiết kế tối ưu của ATX HOME
Từ bố cục công năng đến lựa chọn vật liệu, ATX HOME luôn đặt hiệu quả sử dụng và độ bền kỹ thuật lên hàng đầu. Công trình của anh Dũng được áp dụng giải pháp kết cấu bê tông cốt thép chịu lực cao, hệ mái bằng chống thấm 3 lớp và tiêu chuẩn thi công đảm bảo độ bền kết cấu trên 50 năm sử dụng.
Từng chi tiết nhỏ như kích thước cửa, độ cao tầng, tỷ lệ khối mặt tiền đều được đội ngũ kiến trúc sư tính toán dựa trên thực tế thi công giúp ngôi nhà không chỉ đẹp ở bản vẽ mà còn chuẩn xác khi hoàn thiện thực tế.

Kiến trúc hiện đại, bền vững theo thời gian
Ngôi nhà sử dụng phong cách hiện đại với hình khối mạnh mẽ, kết hợp tinh tế giữa tông trắng chủ đạo, ốp đá vân nâu sang trọng và mảng xanh mềm mại ở ban công. Thiết kế mặt tiền có độ sâu và tỷ lệ hợp lý, giúp công trình giữ được nét cân đối dù diện tích mặt bằng không quá lớn.
Cửa kính khung nhôm kết hợp lam che nắng gỗ nhựa ngoài trời giúp tối ưu ánh sáng, lưu thông không khí, đồng thời mang đến vẻ sang trọng và hiện đại đặc trưng của nhà phố cao cấp.

Mặt bằng công năng khoa học và tiện nghi
Mẫu nhà được thiết kế cho gia đình đông thành viên, nên mỗi tầng đều được tính toán kỹ lưỡng để đảm bảo đủ không gian riêng tư và khu sinh hoạt chung thoải mái.
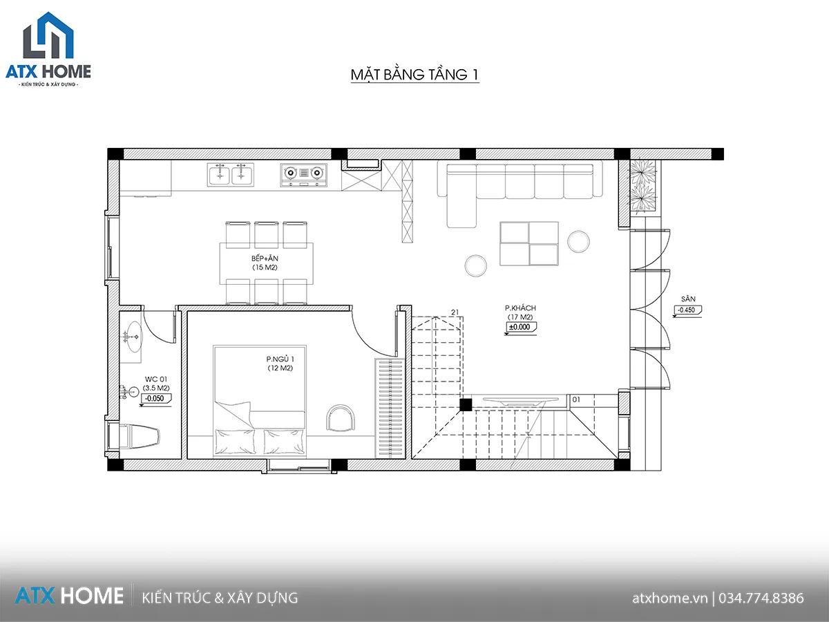
Tầng 1 – Không gian sinh hoạt chung
Gồm phòng khách 17m² liền kề bếp – ăn 15m², tạo cảm giác liền mạch, rộng rãi. Phía sau là phòng ngủ 12m² cùng WC riêng, phù hợp cho người lớn tuổi hoặc khách ở lại qua đêm.

Tầng 2 – Khu nghỉ ngơi chính
Bố trí 3 phòng ngủ (11–11,5m²), mỗi phòng đều có cửa sổ đón sáng tự nhiên. Kho nhỏ đặt giữa nhà giúp lưu trữ tiện lợi mà không ảnh hưởng thẩm mỹ tổng thể.

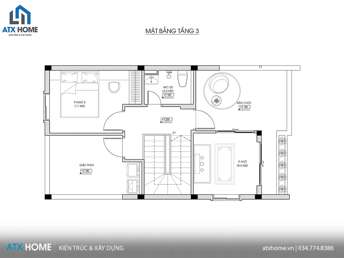
Tầng 3 – Không gian mở và thư giãn
Gồm phòng thờ 8,5m², phòng ngủ phụ, khu giặt phơi và sân chơi ngoài trời. Khu sân được che một phần bằng lam thép, vừa tạo điểm nhấn kiến trúc, vừa là nơi thư giãn sau ngày làm việc.

ATX HOME – Năng lực được chứng minh qua từng công trình
Không chỉ thiết kế đẹp, ATX HOME được khách hàng tin chọn nhờ quy trình thi công chuẩn kỹ thuật, giám sát chặt chẽ và cam kết chất lượng vật liệu đầu vào. Mỗi công trình đều được quản lý tiến độ, kiểm tra kết cấu và nghiệm thu từng giai đoạn minh bạch đảm bảo đúng chi phí, đúng chất lượng và đúng thời gian bàn giao. ATX HOME xây dựng uy tín bằng chính những công trình đã hoàn thiện, đạt chuẩn kỹ thuật và được khách hàng kiểm chứng thực tế.
Nếu anh/chị đang tìm kiếm một đơn vị thiết kế – thi công nhà ở uy tín, hãy để ATX HOME đồng hành cùng anh/chị từ bản vẽ đầu tiên đến khi hoàn thiện tổ ấm mơ ước. Liên hệ ATX HOME ngay hôm nay theo số hotline 034.774.8386

