Mẫu nhà lô phố 5 tầng 5,7×16,5m – Không gian sống hiện đại cho gia đình 3 thế hệ
- Diện tích: 430 m²
- Phòng ngủ: 7
- Số tầng: 5
- Tầng hầm: 0
- Khách hàng: Chú Long
- Địa chỉ: Ninh Bình
- Chi phí xây dựng: 2,6 Tỷ
- Tổng chi phí: 3,2 tỷ
Mô tả dự án
Với tổng diện tích sử dụng lên tới 430m², ngôi nhà 5 tầng của chú Long được ATX HOME thiết kế tối ưu cho gia đình nhiều thế hệ. Dù thửa đất có hình dáng không vuông vức, công trình vẫn mang lại bố cục hợp lý, đẹp mắt và tiện nghi trong từng không gian.

Kiến trúc hiện đại, ấn tượng
Ngôi nhà được thiết kế theo phong cách hiện đại, tinh tế và gần gũi với thiên nhiên. Hình khối mặt tiền được xử lý khéo léo để che giấu nhược điểm đất méo, tạo cảm giác cân đối và hài hòa.
Vật liệu hiện đại như đá tự nhiên, gỗ nhựa ốp trần, lan can kính giúp tổng thể trở nên sang trọng mà vẫn giữ được nét ấm áp. Các khoảng ban công nhỏ kết hợp cây xanh được tính toán tỉ mỉ để mang lại sự thông thoáng và sinh khí cho toàn bộ ngôi nhà.

Mặt bằng công năng khoa học và tiện nghi
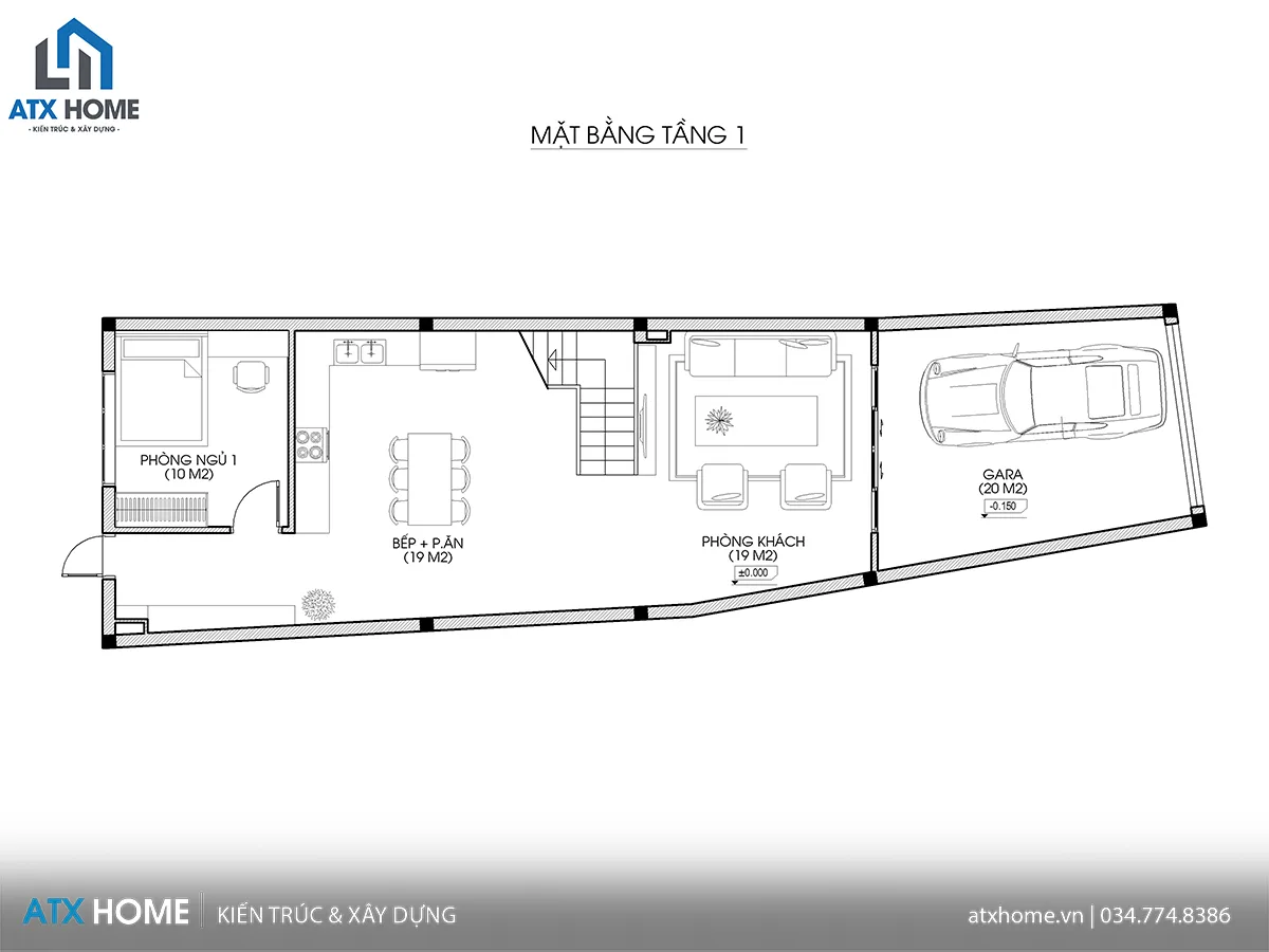
Tầng 1 – Không gian sinh hoạt chung và gara để xe
Tầng 1 gồm:
-
Gara ô tô 20m², đủ chỗ cho 1 xe và xe máy.
-
Phòng khách 19m² liền kề bếp + phòng ăn 19m², tạo không gian mở rộng rãi, thuận tiện sinh hoạt.
-
Phòng ngủ 1 (10m²) đặt phía cuối nhà, thích hợp cho người lớn tuổi, hạn chế di chuyển.

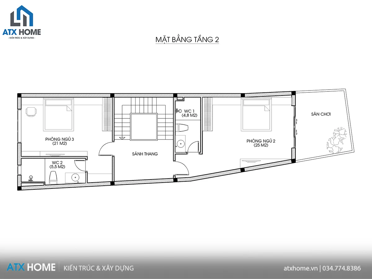
Tầng 2 – Khu vực nghỉ ngơi của các thành viên
Bố trí 2 phòng ngủ rộng (21m² và 25m²), mỗi phòng đều có WC riêng và sân chơi thoáng đãng phía trước, mang lại không gian nghỉ ngơi riêng tư và tiện nghi.

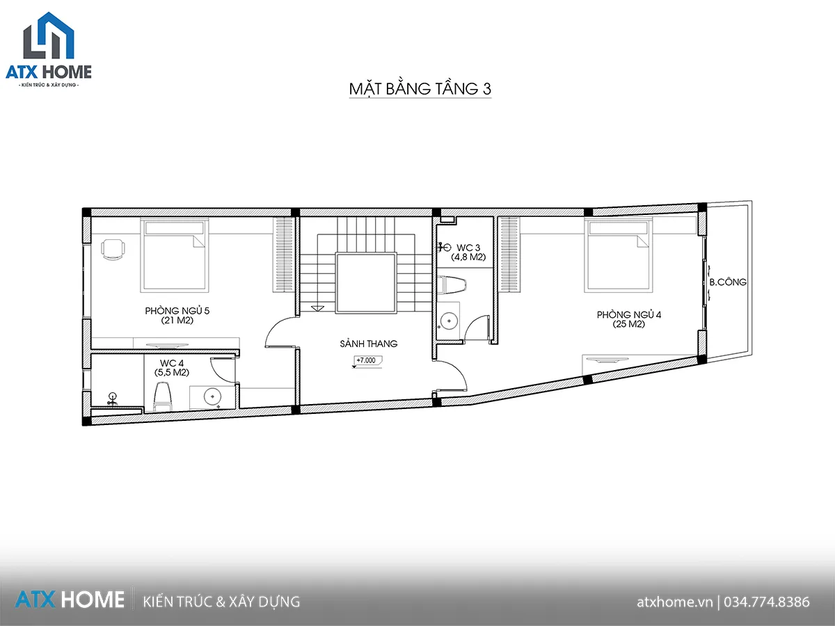
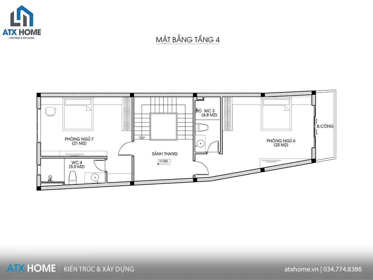
Tầng 3 & 4 – Bố trí tương tự tầng 2, mở rộng không gian ngủ cho đại gia đình
Hai tầng này gồm 4 phòng ngủ khép kín, mỗi phòng có diện tích từ 21–25m², thông gió và chiếu sáng tự nhiên nhờ ban công và cửa sổ lớn. Đây là giải pháp phù hợp với gia đình đông người, vừa đảm bảo riêng tư vừa giữ kết nối nhờ sảnh thang trung tâm.


Tầng 5 – Không gian tâm linh và sinh hoạt phụ
Tầng trên cùng gồm:
-
Phòng thờ 10m² hướng ra sân chơi, tạo nơi trang nghiêm và thông thoáng.
-
Phòng giặt 4,8m² và sân phơi lớn, tiện sử dụng hàng ngày.

ATX HOME – Thiết kế chuẩn cho từng thửa đất, dù vuông hay méo
Không phải mảnh đất nào cũng hoàn hảo, nhưng với kinh nghiệm và chuyên môn thực tế, ATX HOME luôn biết cách biến hạn chế thành ưu điểm. Từng công trình của chúng tôi được thiết kế dựa trên đặc thù thửa đất, nhu cầu sử dụng và ngân sách của gia chủ, đảm bảo tối ưu cả thẩm mỹ, công năng, độ bền kết cấu.
Đội ngũ ATX HOME đồng hành cùng khách hàng từ khâu thiết kế, xin phép xây dựng đến thi công hoàn thiện, giúp gia chủ yên tâm tuyệt đối khi giao trọn ngôi nhà của mình.
Bạn đang sở hữu lô đất chưa đẹp hoặc có hình dáng đặc biệt? Hãy để ATX HOME giúp bạn tìm ra phương án thiết kế phù hợp nhất đúng nhu cầu, đúng chi phí, đúng kỹ thuật. Bạn có thể liên hệ với ATX HOME theo số hotline 034.774.8386

