Mẫu nhà ống 4 tầng 4m mặt tiền với chi phí hoàn thiện 1,5 tỷ
- Diện tích: 170 m²
- Phòng ngủ: 3
- Số tầng: 4
- Tầng hầm: 0
- Khách hàng: Anh Nguyên
- Địa chỉ: Bắc Ninh
- Chi phí xây dựng: 1 tỷ
- Tổng chi phí: 1,5 tỷ
Mô tả dự án
Thiết kế tinh gọn, hiện đại và tràn ngập ánh sáng, ngôi nhà của anh Nguyên tại Bắc Ninh là minh chứng rõ nét cho năng lực thiết kế và thi công chuyên nghiệp của ATX HOME trong việc biến những khu đất hẹp thành không gian sống lý tưởng.

Phối cảnh 3D mang nét hiện đại và sang trọng
Công trình gây ấn tượng mạnh với hình khối kiến trúc vuông vắn, đường nét khỏe khoắn, cùng sự phối hợp hài hòa giữa vật liệu gỗ, kính và kim loại. Gam màu vàng đồng tinh tế được nhấn ở các chi tiết viền khung cửa và lam trang trí, giúp mặt tiền vừa nổi bật vừa sang trọng mà không phô trương.
Tầng thượng được thiết kế sân phơi kết hợp tiểu cảnh xanh, vừa là nơi thư giãn, vừa giúp điều hòa không khí cho toàn bộ ngôi nhà. Cổng và hàng rào sắt CNC hoa văn đồng bộ với mặt tiền, thể hiện gu thẩm mỹ riêng của gia chủ.

Mặt bằng công năng gọn gàng, tiện nghi và hợp lý
Dù sở hữu diện tích khiêm tốn chỉ 4×11,3m, nhưng nhờ tư duy bố trí không gian thông minh, ATX HOME đã tối ưu hóa công năng cho từng tầng, đảm bảo đầy đủ tiện ích cho gia đình 4 người mà vẫn thông thoáng, tiện nghi.

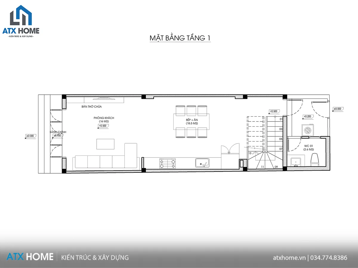
Tầng 1 – Không gian sinh hoạt và thờ cúng
Không gian tầng trệt gồm phòng khách kết hợp bàn thờ Chúa trang trọng, liên thông với phòng bếp + ăn ấm cúng. Phía cuối nhà là khu vệ sinh chung và khu giặt tiện lợi.

Tầng 2 – Phòng ngủ master rộng rãi
Toàn bộ tầng 2 dành cho phòng ngủ 1 với diện tích 23m², có logia và phòng vệ sinh riêng, mang lại sự riêng tư, yên tĩnh cho vợ chồng gia chủ.

Tầng 3 – Phòng ngủ con và khách
Tầng này bố trí 2 phòng ngủ nhỏ (10–13m²), sử dụng chung WC 3,4m², phù hợp cho con và người thân khi ghé thăm.

Tầng 4 – Sân thượng thoáng đãng
Không gian mở trên cùng là sân thượng rộng 27m², có thể bố trí bàn trà, trồng cây xanh hoặc tận dụng làm khu giặt phơi – nơi lý tưởng để thư giãn vào cuối tuần.

ATX HOME – Đơn vị thiết kế và thi công nhà ở uy tín
Không chỉ là một đơn vị thiết kế và thi công, ATX HOME là tập thể những kiến trúc sư, kỹ sư tâm huyết luôn đặt giá trị sống của gia chủ làm trọng tâm trong từng bản vẽ. Mỗi công trình không chỉ được tính toán kỹ lưỡng về kết cấu, công năng và thẩm mỹ, mà còn được thiết kế để phù hợp với lối sống, thói quen của từng gia đình.
ATX HOME tự hào sở hữu đội ngũ chuyên môn vững vàng, am hiểu nhiều phong cách kiến trúc từ hiện đại, tân cổ điển đến tối giản. Quy trình làm việc rõ ràng, ứng dụng công nghệ và phần mềm quản lý thi công tiên tiến, giúp khách hàng dễ dàng theo dõi tiến độ và chất lượng từng giai đoạn.
Với hàng trăm công trình đã hoàn thiện trên khắp cả nước, ATX HOME được khách hàng tin tưởng nhờ:
-
Giải pháp thiết kế tối ưu cho từng diện tích, từng phong cách sống.
-
Thi công đúng kỹ thuật, đảm bảo chất lượng và độ bền công trình.
-
Chi phí minh bạch, không phát sinh so với dự toán ban đầu.
-
Bảo hành kết cấu dài hạn lên tới 50 năm, cam kết đồng hành cùng chủ nhà lâu dài
Nếu bạn đang tìm kiếm mẫu nhà phố hiện đại, khoa học và tiết kiệm chi phí, hãy để ATX HOME giúp bạn hiện thực hóa ngôi nhà trong mơ. Bạn có thể liên hệ với ATX HOME theo số hotline 034.774.8386.

