Nhà mái Nhật 2 tầng rộng 300 m² với 5 phòng ngủ cực rộng
- Diện tích: 300 m²
- Phòng ngủ: 5
- Số tầng: 2
- Tầng hầm: 0
- Khách hàng: Anh Bằng
- Địa chỉ: Hà Tĩnh
- Chi phí xây dựng: 1,9 tỷ
- Tổng chi phí: 2,6 tỷ
Mô tả dự án
Ngôi nhà mái Nhật 2 tầng của anh Bằng tại Thái Nguyên (17.7 x 8.4 m, 300 m²) nổi bật với phong cách tân cổ nhẹ. Công năng gồm 5 phòng ngủ, không gian sinh hoạt tiện nghi, thoáng sáng, tổng chi phí hoàn thiện khoảng 2.6 tỷ đồng.

Giới thiệu chung về mẫu nhà mái Nhật 2 tầng
Nhà mái Nhật 2 tầng là xu hướng thiết kế được nhiều gia đình Việt lựa chọn trong những năm gần đây nhờ sự dung hòa hoàn hảo giữa thẩm mỹ, công năng và chi phí đầu tư. Kiến trúc mái dốc nhẹ vừa mang lại vẻ thanh thoát, vừa tạo cảm giác gần gũi, ấm áp cho không gian sống.
Không chỉ nổi bật với kiểu dáng sang trọng, nhà mái Nhật còn linh hoạt về phong cách, có thể kết hợp hài hòa giữa hiện đại, tân cổ điển hoặc tối giản tùy theo sở thích gia chủ. Mỗi công trình đều mang trong mình nét đẹp tinh tế, hướng đến sự thoải mái và bình yên – đúng tinh thần sống của người Việt hiện đại.

Ngoại thất vững chãi tầng trệt, mềm mại tầng trên
Mẫu nhà nổi bật nhờ sự phối hợp khéo léo giữa hệ cột vuông tầng 1 và cột tròn tầng 2.
-
Tầng 1 với cột vuông ốp đá granite màu nâu vàng, thể hiện sự vững chãi, kiên cố như nền tảng vững vàng của gia đình.
-
Tầng 2 chuyển sang cột tròn phào chỉ tinh tế, tạo cảm giác nhẹ nhàng, thanh thoát hơn, giúp tổng thể ngôi nhà trở nên cân đối và sang trọng.
Tông màu trắng kem chủ đạo kết hợp đá ốp nâu vàng và lan can sắt sơn vàng đồng gợi nên sự sang trọng, ấm áp. Hệ mái ngói Nhật xanh than đảm bảo tính thẩm mỹ lâu dài và chống chịu tốt với thời tiết miền Bắc.
Mặt tiền nổi bật với cửa chính gỗ tự nhiên chạm khắc tinh xảo, kết hợp cùng hệ cửa kính khung nhôm tối màu vừa đón sáng, vừa đảm bảo sự riêng tư và hài hòa giữa cổ điển và hiện đại.

Mặt bằng công năng tiện nghi, thoáng sáng và gần gũi
Thiết kế công năng được ATX HOME triển khai khoa học, đảm bảo không gian sống tiện lợi và tối ưu cho gia đình nhiều thế hệ.
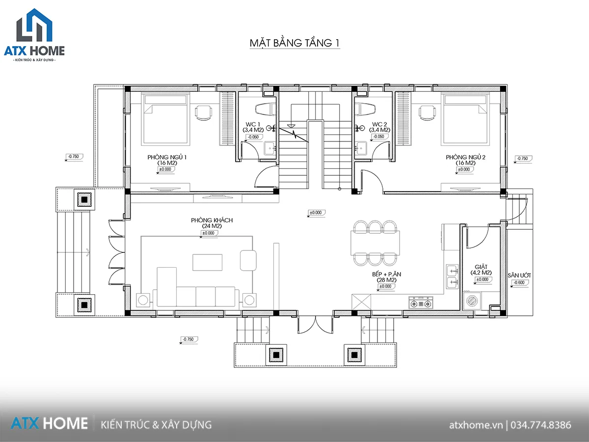
Tầng 1: Nơi sinh hoạt và kết nối
Không gian tầng 1 bố trí phòng khách rộng rãi nối liền phòng ăn và bếp tạo mạch sinh hoạt liền mạch, dễ dàng kết nối các thành viên. Hai phòng ngủ được đặt hai bên cầu thang, mỗi phòng đều có cửa sổ hướng sáng tự nhiên và WC riêng biệt, giúp sinh hoạt thuận tiện hơn.
Từ phòng khách mở ra sảnh chính qua bậc ngũ cấp ốp đá tối màu, tạo cảm giác cao ráo, sang trọng ngay từ lối vào.
Không gian bếp được bố trí mở, hướng ra khoảng sân sau, vừa đảm bảo thông thoáng vừa thuận tiện cho việc nấu nướng.

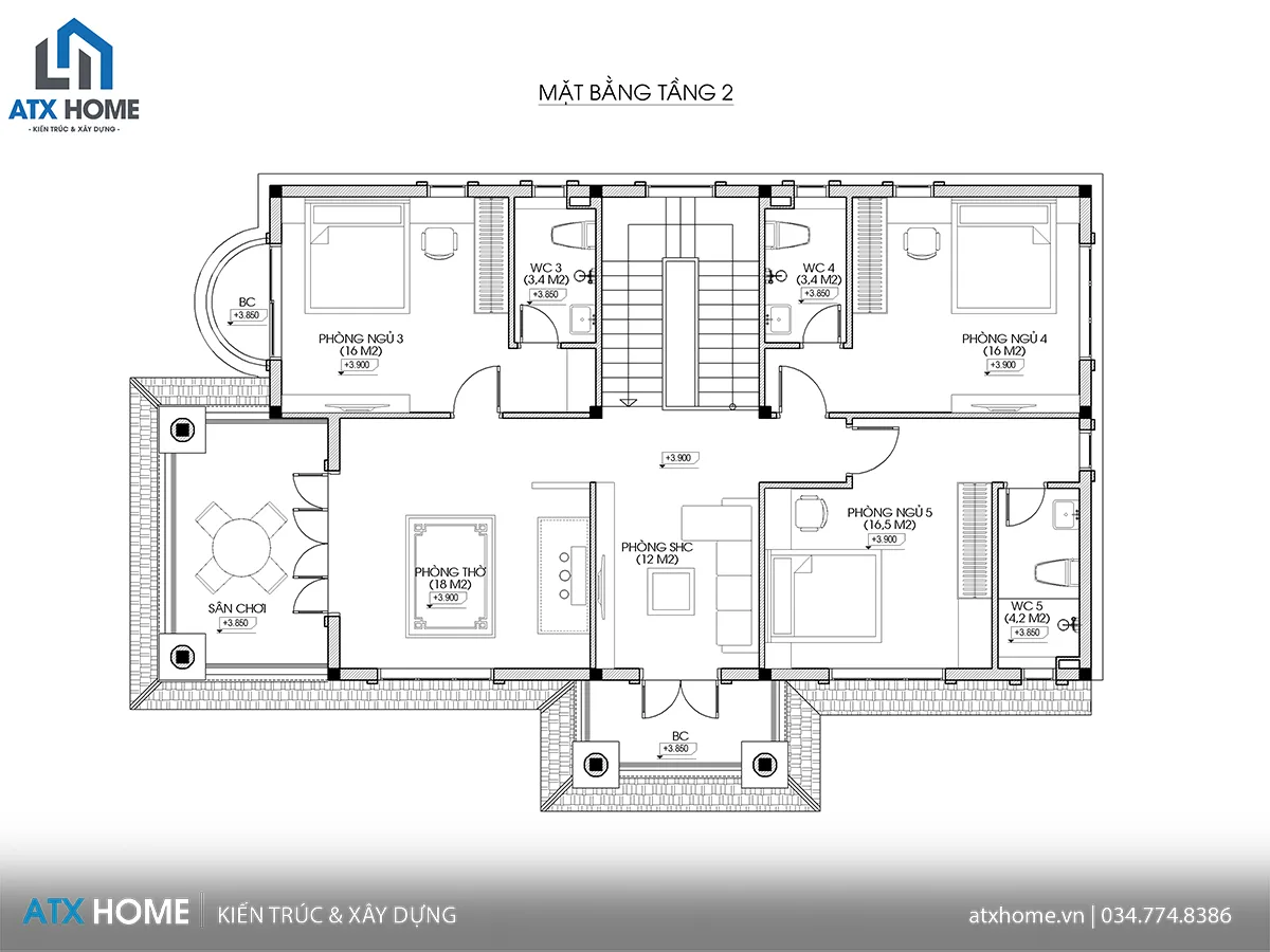
Tầng 2 : Không gian nghỉ ngơi và sinh hoạt chung
Trên tầng hai là 3 phòng ngủ, trong đó phòng ngủ chính có diện tích lớn hơn, kèm khu vực thay đồ, WC riêng. Phòng sinh hoạt chung được đặt tại vị trí trung tâm, kèm theo ban công là nơi lý tưởng để cả nhà cùng thư giãn sau những ngày dài. Phòng thờ trang trọng nằm phía trước, hướng ra ban công, đảm bảo phong thủy và sự tôn nghiêm.

ATX HOME – đơn vị kiến tạo tổ ấm vững bền cùng thời gian
Với phương châm “Kiến tạo không gian sống chuẩn mực cho người Việt hiện đại”, ATX HOME không chỉ mang đến những bản thiết kế đẹp mà còn chú trọng vào chất lượng thi công thực tế và trải nghiệm sống của gia chủ.
Từng chi tiết trong mỗi công trình là kết quả của sự thấu hiểu, tận tâm và kinh nghiệm lâu năm trong lĩnh vực thiết kế – thi công nhà ở dân dụng. Chúng tôi tin rằng một ngôi nhà đẹp là nơi con người cảm nhận được sự an yên, hạnh phúc mỗi khi trở về.
Ngôi nhà mái Nhật 2 tầng của anh Bằng tại Thái Nguyên là minh chứng sống động cho sự tinh tế trong tư duy thiết kế và tâm huyết của đội ngũ ATX HOME. Từng mảng tường, phào chỉ, cột trụ đều được xử lý chỉn chu để tạo nên một tổng thể vừa sang trọng, vừa gần gũi – nơi mà mỗi ngày trở về, gia chủ đều cảm thấy ấm áp và tự hào.
Nếu bạn đang tìm kiếm đơn vị thiết kế và thi công uy tín, hãy để ATX HOME đồng hành cùng bạn từ ý tưởng, bản vẽ đến công trình hoàn thiện, đảm bảo đúng tiến độ, thẩm mỹ và chi phí tối ưu nhất. Bạn có thể liên hệ với ATX Home theo số hotline 034.774.8386 để được các kiến trúc sư của chúng tôi hỗ trợ cụ thể.

