Mẫu nhà mái Nhật 2 tầng sang trọng, tinh tế trong từng chi tiết
- Diện tích: 160 m²
- Phòng ngủ: 3
- Số tầng: 2
- Tầng hầm: 0
- Khách hàng: Chị Xuân
- Địa chỉ: Hải Dương
- Chi phí xây dựng: 1.1 tỷ
- Tổng chi phí: 1,5 tỷ
Mô tả dự án
Ngoại thất thanh lịch, sang trọng
Ngôi nhà gây ấn tượng mạnh với phong cách tân cổ điển nhẹ nhàng, không cầu kỳ hoa mỹ, nhưng vẫn toát lên vẻ sang trọng nhờ những chi tiết phào chỉ tinh tế và đường cong mềm mại. Tông màu trắng sữa chủ đạo kết hợp mái ngói xanh ghi nhã nhặn, điểm xuyết cùng lan can hoa văn sắt nghệ thuật sơn đen viền vàng giúp mặt tiền thêm phần quý phái, nổi bật giữa không gian xung quanh.

Khối sảnh chính được thiết kế với 2 trụ vuông lớn ốp đá tự nhiên màu xám nhạt, vừa tạo sự bề thế vừa tăng cảm giác vững chắc cho công trình. Hệ cửa kính khung nhôm đen giúp lấy sáng hiệu quả, mang lại sự cân bằng giữa yếu tố thẩm mỹ cổ điển và công năng hiện đại.
Điểm nhấn đặc trưng của ngôi nhà là ban công cong hình bán nguyệt ở tầng 2 – một chi tiết vừa mềm mại, vừa mang dấu ấn riêng, thể hiện gu thẩm mỹ tinh tế của gia chủ.
Tổng thể kiến trúc toát lên vẻ thanh thoát, sang trọng mà vẫn gần gũi, một lựa chọn hoàn hảo cho gia đình yêu thích phong cách nhẹ nhàng, tinh tế nhưng không kém phần đẳng cấp.

Mặt bằng công năng khoa học, tiện nghi cho gia đình 3 thế hệ
Ngôi nhà mái Nhật 2 tầng của chị Xuân tại Hải Dương được ATX HOME thiết kế tối ưu công năng trên diện tích 160m², phù hợp cho gia đình 4–5 thành viên.

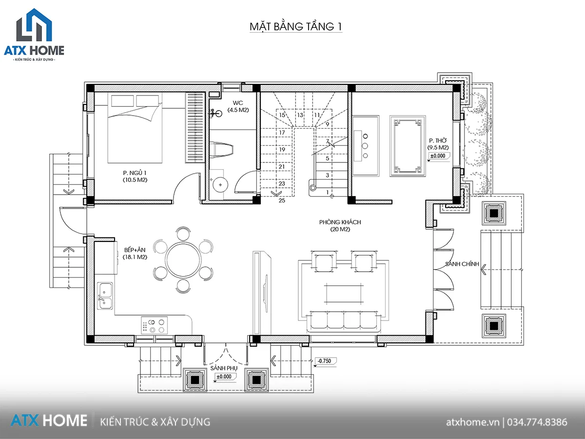
Tầng 1: Không gian sinh hoạt tiện nghi và ấm cúng
Công năng tầng 1 được ATX HOME bố trí hợp lý, đảm bảo sự thuận tiện và kết nối trong sinh hoạt. Từ sảnh chính bước vào là phòng khách 20m² – nơi tiếp đón khách và sinh hoạt chung của cả gia đình. Bên phải là phòng thờ 9.5m², được bố trí trang trọng và tách biệt, thể hiện sự tôn kính của gia chủ đối với tổ tiên.
Liền kề phòng khách là bếp + ăn 18.1m², thiết kế mở giúp không gian thông thoáng và gắn kết hơn. Phòng ngủ 1 (10.5m²) đặt phía sau, phù hợp cho người lớn tuổi, thuận tiện di chuyển và sinh hoạt. Ngoài ra, tầng 1 còn có WC chung 4.5m², đặt ở vị trí kín đáo, tiện lợi khi sử dụng.
Mặt bằng tầng 1 tối ưu công năng, mang đến không gian sinh hoạt vừa ấm cúng, vừa riêng tư cho từng thành viên.

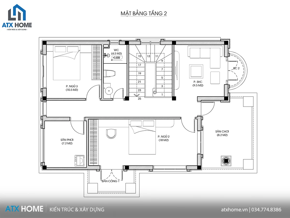
Tầng 2: Không gian nghỉ ngơi thoáng đãng, kết nối thiên nhiên
Tầng 2 được bố trí gồm 2 phòng ngủ (10.5m² và 18m²), đều có cửa sổ lớn hướng ra sân chơi và ban công, giúp đón gió và ánh sáng tự nhiên tối đa. Khu vực trung tâm là phòng sinh hoạt chung 9.5m², nơi cả gia đình có thể thư giãn, xem phim hoặc đọc sách cùng nhau.
Phía sau là sân phơi 7.2m², tiện cho việc giặt giũ và phơi đồ. Phía trước là sân chơi 8.2m², có thể bố trí cây xanh, bàn trà tạo nên không gian nghỉ ngơi lý tưởng mỗi chiều. Cuối cùng là WC chung 4.5m², được đặt thuận tiện ở giữa hai phòng ngủ.
Thiết kế tầng 2 nhấn mạnh vào sự thông thoáng và riêng tư, phù hợp với nếp sống gia đình trẻ năng động.

Chi phí xây dựng tối ưu đầu tư, hiệu quả thẩm mỹ
Với chi phí hoàn thiện 1.5 tỷ đồng, ATX HOME đã mang đến cho gia đình chị Xuân một công trình có tỷ lệ thẩm mỹ, chất lượng, chi phí cân bằng hoàn hảo. Các vật liệu được lựa chọn đều đảm bảo độ bền cao, dễ bảo trì, tiết kiệm chi phí lâu dài, phù hợp với điều kiện khí hậu miền Bắc.
Đây là một trong những mẫu nhà mái Nhật tân cổ điển 2 tầng tiêu biểu, phù hợp với những gia đình có diện tích đất vừa phải nhưng vẫn mong muốn không gian sống sang trọng, tiện nghi.

ATX HOME – Đồng hành cùng bạn từ bản vẽ đến tổ ấm
Tại ATX HOME, chúng tôi hiểu rằng mỗi ngôi nhà không chỉ là nơi ở, mà còn là tài sản và tâm huyết cả đời của gia chủ. Vì vậy, đội ngũ kiến trúc sư và kỹ sư của ATX HOME luôn đặt tâm – tầm – tinh trong từng công trình:
-
Tâm trong việc lắng nghe nhu cầu thực tế của khách hàng.
-
Tầm trong thiết kế phù hợp phong thủy, công năng và thẩm mỹ.
-
Tinh trong thi công chi tiết, đảm bảo chất lượng và độ bền theo thời gian.
Chúng tôi cam kết mang đến những giải pháp thiết kế và thi công trọn gói, giúp khách hàng tiết kiệm thời gian, chi phí và an tâm trong suốt quá trình xây dựng. ATX HOME – Kiến tạo không gian sống vững bền, nâng tầm giá trị tổ ấm. Liên hệ ngay với chúng tôi theo số hotline 034.774.8386 để được tư vấn miễn phí bản vẽ phù hợp với nhu cầu và ngân sách của bạn!

