Nhà mái Nhật 2 tầng 300m² với 4 phòng ngủ nhìn là mê
- Diện tích: 300 m²
- Phòng ngủ: 4
- Số tầng: 2
- Tầng hầm: 0
- Khách hàng: Bác Ngọc
- Địa chỉ: Ninh Bình
- Chi phí xây dựng: 1,8 tỷ
- Tổng chi phí: 2,4 tỷ
Mô tả dự án
Tổ ấm sang trọng và bền vững của gia đình bác Ngọc
Tọa lạc giữa không gian xanh mát của vùng đất Ninh Bình, ngôi nhà 2 tầng mái Nhật được ATX HOME thiết kế dành riêng cho bác Ngọc – người yêu nét đẹp chỉn chu, giản dị nhưng vẫn đậm khí chất sang trọng.
Với diện tích gần 300m², công trình vừa là biểu tượng của sự tinh tế trong kiến trúc hiện đại, vừa phản ánh gu thẩm mỹ tinh tế và nếp sống đầm ấm của gia đình Việt.

Ngoại thất thanh lịch, sang trọng
Từ mặt tiền, ngôi nhà đã gây ấn tượng bởi sự cân đối trong từng khối kiến trúc. Hệ mái Nhật màu xanh than thanh thoát, kết hợp tường trắng tinh khôi, mang đến tổng thể nhẹ nhàng nhưng đầy sức hút.
Điểm đặc biệt của công trình là hệ cột được xử lý khéo léo giữa hai tầng: Tầng 1 sử dụng cột vuông to bản, chân cột ốp đá granite đen tạo thế vững chắc, bề thế. Tầng 2 chuyển sang hệ cột tròn đôi, tạo cảm giác mềm mại và quý phái, nhất là ở khu sảnh và ban công chính. Sự chuyển đổi khối cột này giúp ngôi nhà vừa thể hiện sự mạnh mẽ của nền móng, vừa toát lên vẻ thanh lịch ở tầng trên.
Sảnh chính mái vòm cong, cột tròn đôi nâng đỡ tạo cảm giác cao sang. Ban công đan xen giữa con tiện và lan can sắt mỹ thuật, điểm nhấn duyên dáng cho mặt tiền. Cửa chính gỗ tự nhiên chạm khắc tinh tế, đối lập hài hòa với mảng tường trắng phào chỉ. Khu gara có cửa cuốn tự động, bố trí liền khối nhưng vẫn giữ tỷ lệ hài hòa với mặt đứng tổng thể. Cảnh quan quanh nhà được phủ xanh với bồn hoa, cây cảnh tạo cảm giác sống động, gần gũi.

Mặt bằng công năng – khoa học, tiện nghi và thoải mái
Ngôi nhà không chỉ đẹp ở dáng vẻ bên ngoài mà còn được tính toán công năng hợp lý, phù hợp sinh hoạt của 3 thế hệ trong cùng một mái nhà.
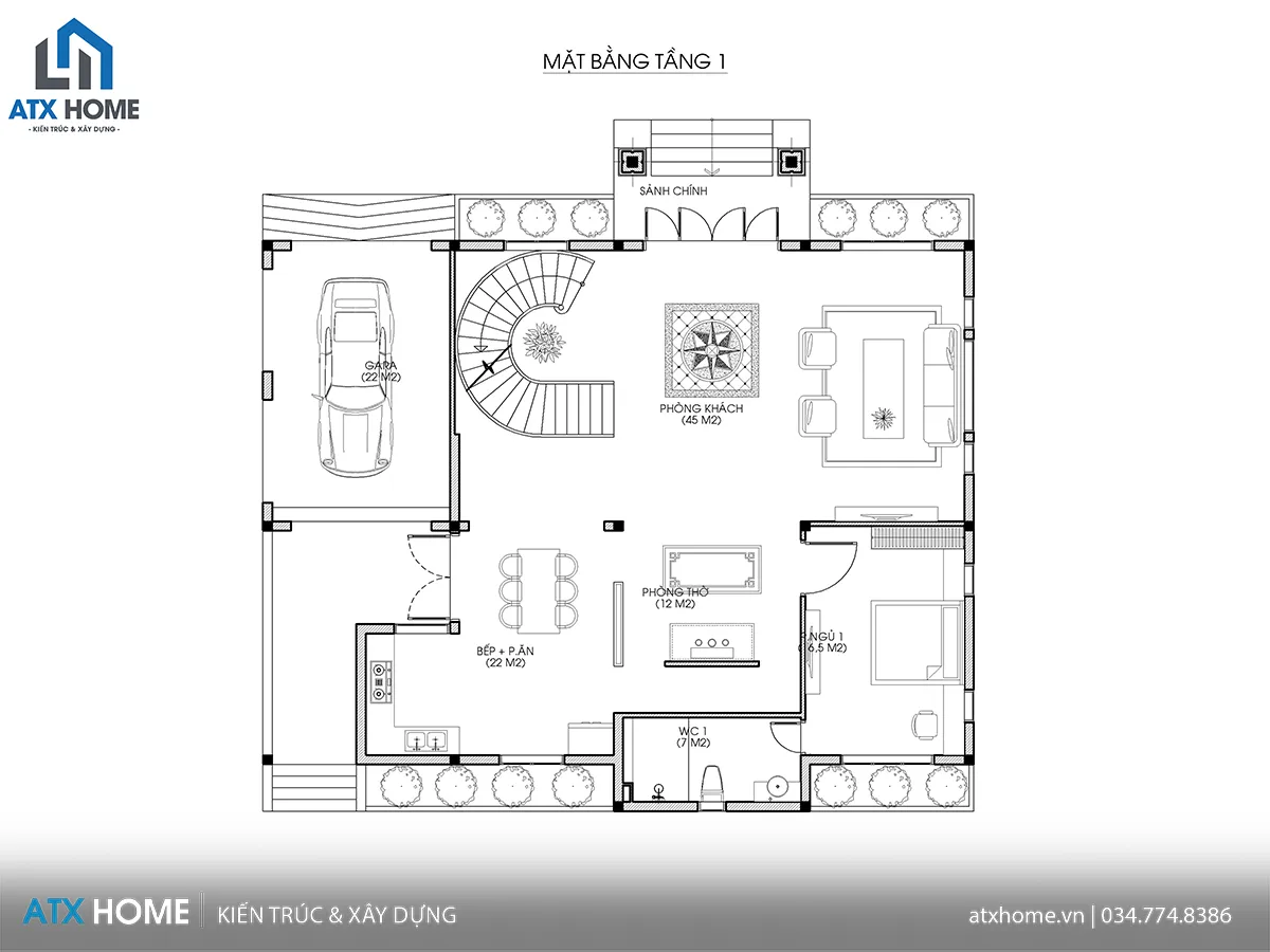
Tầng 1 là không gian chung rộng mở và gắn kết
-
Phòng khách (45m²): Bước qua sảnh chính là phòng khách sang trọng, nơi đón tiếp và quây quần. Cửa sổ lớn giúp căn phòng tràn ánh sáng tự nhiên.
-
Phòng thờ (12m²): Nằm liền kề phòng khách, hướng ra phía trước – thuận phong thủy và mang lại cảm giác trang nghiêm.
-
Phòng ngủ 1 (16,5m²): Bố trí phía trong, có WC khép kín, yên tĩnh và thuận tiện cho người lớn tuổi.
-
Phòng bếp + ăn (22m²): Khu vực nấu nướng và ăn uống được thiết kế thoáng, liên thông với khoảng sân sau để dễ dàng đón gió và mùi thức ăn không ám vào nhà.
-
Gara ô tô (22m²): Thiết kế liền khối công trình, có lối thông nội bộ vào nhà, đảm bảo an toàn và tiện dụng khi trời mưa.
Không gian tầng 1 tạo cảm giác sang trọng, trang nghiêm ở mặt tiền, nhưng vẫn ấm áp, gần gũi ở phía sau – nơi sinh hoạt gia đình diễn ra mỗi ngày.

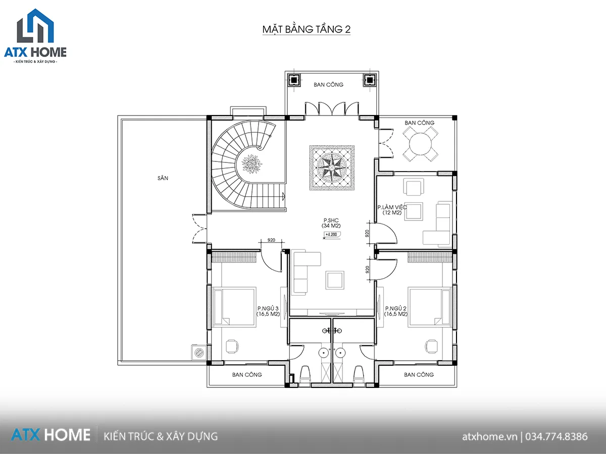
Tầng 2 tạo sự riêng tư, thư giãn và đón nắng gió tự nhiên
-
Phòng sinh hoạt chung (34m²): Nằm trung tâm tầng 2, rộng rãi và thoáng sáng nhờ giếng trời giữa nhà, là nơi thư giãn, đọc sách hoặc trò chuyện buổi tối.
-
Phòng ngủ 2 & 3 (mỗi phòng 16,5m²): Hai phòng đối xứng nhau qua trục giữa, đều có ban công riêng tạo góc thư giãn đầy nắng, có WC riêng thuận tiện cho từng thành viên.
-
Phòng làm việc (12m²): Gọn gàng, yên tĩnh lý tưởng cho bác Ngọc làm việc hoặc đọc sách.
-
Ban công lớn và sân phơi: Mở rộng ra nhiều hướng, giúp lưu thông không khí và là điểm ngắm cảnh tuyệt vời vào sáng sớm.

Tổng quan đánh giá
Với diện tích 15,2×11,2m, ngôi nhà mang dáng vẻ bề thế nhưng không khoa trương. Mỗi chi tiết đều thể hiện sự tinh tế, từ phào chỉ bo nhẹ, mái vòm cong mềm, đến lan can hoa văn tinh xảo.
Công năng được tính toán hợp lý, đáp ứng hoàn hảo nhu cầu sinh hoạt của một gia đình 3 thế hệ vừa sang, vừa ấm cúng, vừa tiện nghi.

ATX HOME – Đối tác tin cậy kiến tạo tổ ấm đẳng cấp
Mỗi công trình của ATX HOME đều được sinh ra từ sự lắng nghe và thấu hiểu. Chúng tôi không chỉ thiết kế một ngôi nhà, mà là kiến tạo không gian sống trọn cảm xúc – nơi mỗi thành viên đều tìm thấy sự bình yên, thoải mái và niềm tự hào.
Nếu bạn đang tìm kiếm một ngôi nhà mái Nhật 2 tầng thanh lịch, tối ưu công năng và bền đẹp với thời gian, hãy để ATX HOME đồng hành cùng bạn từ bản vẽ đầu tiên cho đến ngày bàn giao chìa khóa.
Liên hệ ATX HOME:
📞 Hotline: 034.774.8386
🌐 Website: atxhome.vn
📘 Facebook: Công ty TNHH Kiến trúc và Xây dựng ATX HOME

