Nhà lô phố 3 tầng đẹp nổi bật trong khu phố mặt tiền hẹp
- Diện tích: 220 m²
- Phòng ngủ: 4
- Số tầng: 3
- Tầng hầm: 0
- Khách hàng: Anh Tú
- Địa chỉ: Hòa Bình
- Chi phí xây dựng: 1,3 tỷ
- Tổng chi phí: 1,6 tỷ
Mô tả dự án
Giải pháp tối ưu cho nhà phố hiện đại
Với diện tích 5×13,7m, việc bố trí giao thông dọc và phân tầng hợp lý giúp ngôi nhà vừa đủ riêng tư, vừa đảm bảo sự gắn kết giữa các không gian. Kết cấu được tính toán chắc chắn bằng hệ khung bê tông cốt thép tiêu chuẩn, đảm bảo độ bền và khả năng chịu lực cao, thích ứng tốt với điều kiện thời tiết miền Bắc.
Cách phối vật liệu của ATX HOME hướng đến độ bền lâu dài, dễ bảo trì và tiết kiệm chi phí trong quá trình sử dụng.

Kiến trúc hiện đại, giữ vững giá trị thẩm mỹ theo thời gian
Phối cảnh ngôi nhà nổi bật với mảng khối vuông vức, tông màu trắng – ghi trung tính và điểm nhấn gỗ ốp trần ngoài trời tạo cảm giác ấm áp, sang trọng. Ban công nhỏ được bố trí tiểu cảnh xanh giúp công trình cân bằng giữa nét hiện đại và thiên nhiên, trong khi cửa kính khung nhôm Xingfa giúp tận dụng tối đa ánh sáng tự nhiên.
Dù nằm trong khu phố có mặt tiền hẹp, ATX HOME vẫn khéo léo thiết kế hình khối mặt đứng vừa mạnh mẽ, vừa tinh tế, khiến công trình nổi bật mà không phô trương.

Mặt bằng công năng hướng tới tiện nghi sống
Công năng được bố trí hợp lý, đảm bảo thông thoáng và phù hợp với gia đình nhiều thế hệ.

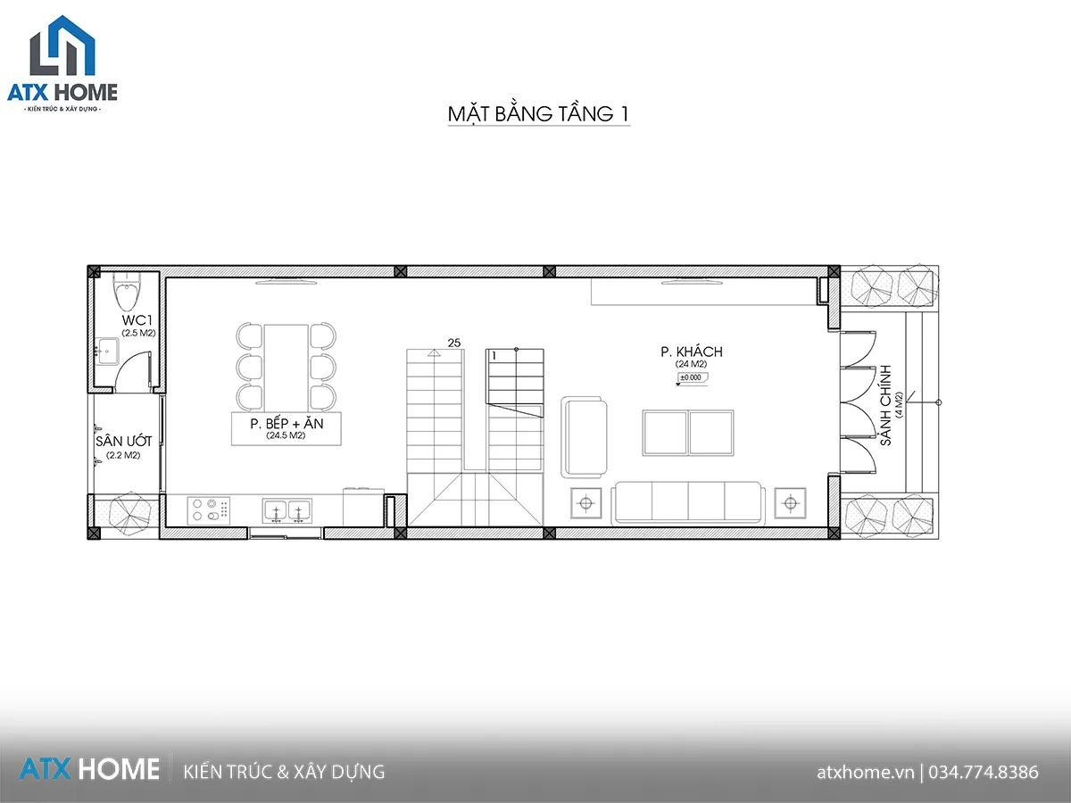
Tầng 1 – Không gian sinh hoạt chung
-
Phía trước là phòng khách 24m², thiết kế mở liên thông với bếp + ăn 24,5m², tạo cảm giác rộng rãi và tiện giao tiếp.
-
Cuối nhà là WC và sân ướt nhỏ, hỗ trợ nhu cầu sinh hoạt hằng ngày mà vẫn đảm bảo kín đáo.

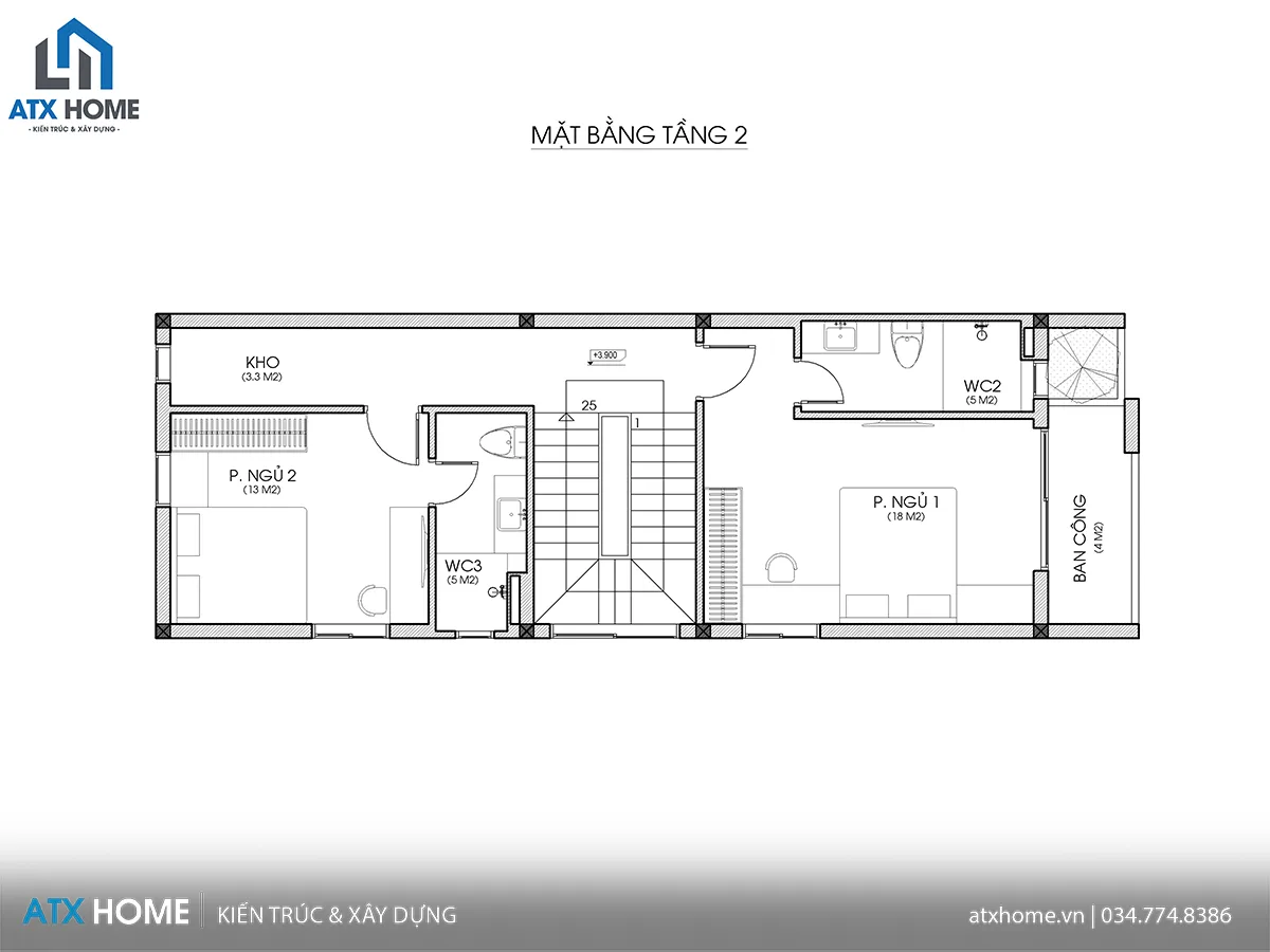
Tầng 2 – Khu nghỉ ngơi riêng tư
-
Gồm 2 phòng ngủ lớn (18m² và 13m²), có WC khép kín, mỗi phòng đều có cửa sổ lấy sáng tự nhiên.
-
Có phòng kho nhỏ để lưu trữ đồ gia đình, giúp không gian luôn gọn gàng.

Tầng 3 – Không gian mở & tâm linh
-
Gồm 2 phòng ngủ 11m², phòng thờ 9,5m² và khu giặt phơi riêng biệt, tối ưu cho việc sử dụng hằng ngày.
-
Bố trí hợp lý giúp toàn bộ tầng đón gió và ánh sáng tự nhiên, tiết kiệm điện năng đáng kể.

ATX HOME – Thiết kế, thi công chuẩn kỹ thuật
Tại ATX HOME, mỗi công trình không chỉ là sản phẩm kiến trúc mà còn là cam kết kỹ thuật và sự đồng hành trọn vẹn cùng gia chủ. Chúng tôi làm việc dựa trên ba giá trị cốt lõi:
-
Hiểu đúng nhu cầu, tư vấn đúng giải pháp, thi công đúng bản vẽ.
-
Đội ngũ kỹ sư ATX HOME trực tiếp giám sát từng giai đoạn thi công, đảm bảo công trình đạt chuẩn chất lượng và độ bền kết cấu lâu dài.
Sự hài lòng của khách hàng không đến từ lời quảng cáo, mà từ những ngôi nhà thực tế được bàn giao đúng tiến độ, đúng chi phí và đúng kỳ vọng. Hãy gửi diện tích đất và nhu cầu sử dụng của bạn để nhận phương án thiết kế phù hợp, tối ưu chi phí xây dựng cùng đội ngũ ATX HOME.
-
Hotline: 034.774.8386
-
Website: atxhome.vn

