Nhà lô phố 3 tầng 5×17,5m hiện đại, thoáng sáng & đầy tiện nghi
- Diện tích: 220 m²
- Phòng ngủ: 3
- Số tầng: 3
- Tầng hầm: 0
- Khách hàng: Anh Cường
- Địa chỉ: Phú Thọ
- Chi phí xây dựng: 1,3 tỷ
- Tổng chi phí: 1,6 tỷ
Mô tả dự án
Thiết kế hướng tới sự thoải mái trong sinh hoạt và tính bền vững lâu dài, ngôi nhà 3 tầng của anh Cường là minh chứng cho cách ATX HOME biến không gian nhà phố hẹp thành tổ ấm đầy đủ tiện nghi và thẩm mỹ cao.

Kiến trúc hiện đại, không gian mở tinh tế
Phong cách thiết kế của ngôi nhà mang nét hiện đại, nhẹ nhàng và gần gũi với thiên nhiên. Mặt tiền tạo điểm nhấn bằng các mảng giật cấp kết hợp cây xanh, giúp công trình vừa nổi bật giữa khu phố vừa tạo cảm giác mát mẻ, dễ chịu.

Mặt tiền nổi bật với hình khối và vật liệu bền màu
Các đường nét vuông vắn được nhấn bằng lam trần giả gỗ và mảng tường trắng sáng, kết hợp lan can kính giúp không gian thoáng đãng hơn. Tầng trệt được ốp đá granite tối màu, vừa sang trọng vừa bảo vệ tường khỏi bụi và thời tiết.

Ban công và sân thượng phủ xanh
Ban công và tầng thượng được bố trí hệ cây rủ mềm mại, giảm bức xạ nhiệt và mang lại vẻ tươi mát. Phần mái có khoảng giếng trời rộng, kết hợp mái lấy sáng giúp thông thoáng toàn bộ không gian bên trong.
Mặt bằng công năng khoa học và tiện dụng
Thiết kế công năng được ATX HOME tính toán kỹ lưỡng để phù hợp với nhu cầu sinh hoạt 4–5 người trong gia đình.
Tầng 1 – Kết nối bếp và khách
-
Phòng khách (23m²) rộng, có cửa lớn mở ra sân trước giúp đón sáng và gió tự nhiên.
-
Bếp + ăn (17m²) bố trí bàn đảo tiện lợi, thuận tiện khi chế biến và dùng bữa.
-
Phòng ngủ 1 (12m²) dành cho ông bà, thuận tiện đi lại.
-
WC tầng 1 (4,7m²) đặt giữa nhà, sử dụng thuận tiện cho cả tầng.

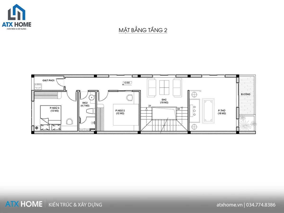
Tầng 2 – Không gian nghỉ ngơi và sinh hoạt chung
-
Phòng ngủ 2 và 3 (12m² mỗi phòng) thiết kế đối xứng, thông thoáng, có cửa sổ riêng.
-
Phòng sinh hoạt chung (10m²) là nơi cả gia đình quây quần, xem phim, đọc sách.
-
Phòng thờ (18m²) đặt ở vị trí yên tĩnh, hướng ra ban công thoáng đãng.
-
WC tầng 2 (4,7m²) dùng chung, bố trí giữa hai phòng ngủ.

Tầng 3 – Sân thượng và kho tiện ích
-
Sân thượng (2 khu, tổng 60m²) là không gian lý tưởng để trồng cây, phơi đồ hoặc tổ chức tiệc nhỏ.
-
Phòng kho (4,5m²) giúp lưu trữ đồ ít dùng, giữ nhà gọn gàng.

Ưu điểm của mẫu nhà phố 3 tầng này
-
Công năng hợp lý, phù hợp gia đình trẻ hoặc nhiều thế hệ.
-
Đón sáng và thông gió tự nhiên tốt nhờ bố trí giếng trời và cửa sổ hợp lý.
-
Chi phí vừa phải, dễ thi công, bảo trì đơn giản.
-
Kiến trúc bền dáng, không lỗi thời theo thời gian.

ATX HOME – Kiến trúc chuẩn, thi công chất lượng, bảo hành kết cấu 50 năm
ATX HOME là đơn vị thiết kế – thi công nhà ở trọn gói với hàng trăm công trình thực tế trên khắp miền Bắc. Chúng tôi mang đến giải pháp toàn diện từ thiết kế đến thi công, giúp gia chủ tiết kiệm chi phí mà vẫn đảm bảo thẩm mỹ và độ bền công trình.
Với đội ngũ kiến trúc sư, kỹ sư dày dạn kinh nghiệm, ATX HOME cam kết:
-
Thiết kế chuẩn công năng, đúng nhu cầu thực tế.
-
Thi công đúng bản vẽ, đảm bảo chất lượng và tiến độ.
-
Bảo hành kết cấu 50 năm, bảo hành hoàn thiện theo hạng mục.
-
Minh bạch chi phí, không phát sinh ngoài hợp đồng.
ATX HOME đồng hành cùng bạn kiến tạo không gian sống chuẩn đẹp, bền vững theo thời gian. Nếu bạn đang tìm kiếm một mẫu nhà đẹp, tiết kiệm chi phí và phù hợp với diện tích thực tế, hãy để ATX HOME giúp bạn hiện thực hóa ý tưởng đó. Bạn có thể liên hệ với ATX HOME theo hotline 034.774.8386.

