Nhà lô phố 3 tầng 230 m² hiện đại, tinh tế và tiện nghi tối ưu
- Diện tích: 230 m²
- Phòng ngủ: 4
- Số tầng: 3
- Tầng hầm: 0
- Khách hàng: Anh Thiện
- Địa chỉ: Lào Cai
- Chi phí xây dựng: 1,4 tỷ
- Tổng chi phí: 1,7 tỷ
Mô tả dự án
Phong cách kiến trúc hiện đại và tinh tế
Công trình mang phong cách hiện đại trẻ trung, nổi bật với các mảng hình khối rõ nét và tông màu trung tính sang trọng. Điểm nhấn của mặt tiền nằm ở mảng ốp gỗ nhựa giả lam, kết hợp cùng kính cường lực và đá granite đen tạo nên tổng thể vừa ấm áp vừa mạnh mẽ.

Hình khối mặt tiền ấn tượng
Mặt tiền được chia lớp rõ ràng với hệ ban công đua nhẹ, lam bê tông trang trí kết hợp giàn cây xanh mang lại cảm giác gần gũi với thiên nhiên. Tầng 1 ốp đá tối màu giúp công trình nổi bật và tạo cảm giác vững chắc.

Không gian xanh len lỏi trong từng tầng
Từ tầng 2 đến sân thượng, cây xanh được bố trí khéo léo tại ban công, sân trước và khoảng mái, giúp công trình vừa đẹp mắt vừa giảm nhiệt hiệu quả cho nhà hướng Tây.

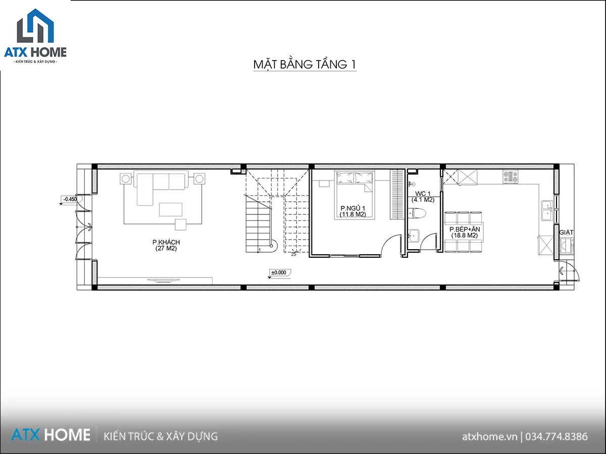
Mặt bằng công năng khoa học, hợp lý
Thiết kế mặt bằng được tính toán kỹ để tận dụng tối đa diện tích 5×18,3m, mang lại không gian sinh hoạt thoải mái cho gia đình 4-6 thành viên.
Tầng 1 – Không gian sinh hoạt chung
-
Phòng khách (27m²) rộng thoáng, tiếp giáp cửa chính và sân trước.
-
Phòng ngủ 1 (11,8m²) bố trí tiện lợi cho người lớn tuổi.
-
Bếp + ăn (18,8m²) có lối phụ ra sân ướt sau nhà, giúp thông thoáng và thuận tiện khi nấu nướng.
-
WC tầng 1 (4,1m²) đặt giữa, phục vụ cả tầng.

Tầng 2 – Khu nghỉ ngơi riêng tư
-
Phòng ngủ 2 (18,8m²) và phòng ngủ 3 (12,5m²) đều có cửa sổ lấy sáng.
-
Phòng ngủ 4 (26m²) rộng nhất, có WC riêng, kết hợp góc làm việc nhỏ.
-
WC chung (4,1m²) giúp sinh hoạt thoải mái.
-
Ban công nhỏ phía trước là điểm thư giãn, ngắm cảnh mỗi sáng.

Tầng 3 – Không gian tâm linh & thư giãn
-
Phòng thờ (15m²) được bố trí trung tâm, yên tĩnh và thoáng đãng.
-
Hai sân thượng trước và sau rộng rãi, lý tưởng cho khu trồng cây, hóng gió hoặc tổ chức tiệc ngoài trời.

ATX HOME – Đơn vị uy tín thiết kế và thi công nhà ở trọn gói
Không chỉ mang đến những bản vẽ đẹp, ATX HOME còn đồng hành cùng gia chủ từ khâu thiết kế ý tưởng, thi công thực tế đến hoàn thiện nội thất, đảm bảo công trình đạt chất lượng cao nhất và tối ưu chi phí đầu tư.
Với nhiều năm kinh nghiệm trong lĩnh vực thiết kế – xây dựng nhà ở dân dụng, chúng tôi luôn đặt uy tín và sự hài lòng của khách hàng làm trọng tâm. Mỗi công trình được ATX HOME thực hiện đều tuân thủ quy trình giám sát chặt chẽ, vật liệu đạt chuẩn và đội ngũ thi công lành nghề.
ATX HOME cam kết:
-
Bản vẽ chuẩn kỹ thuật, đúng công năng và phong thủy.
-
Thi công đúng tiến độ, kiểm soát chi phí rõ ràng.
-
Bảo hành kết cấu 50 năm, bảo hành hoàn thiện theo từng hạng mục.
Nếu đang có nhu cầu xây nhà, bạn hãy liên hệ ngay với ATX HOME theo số hotline 034.774.8386 để được tư vấn giải pháp phù hợp.

