Mẫu nhà phố 4 tầng hoàn hảo cho thổ đất chéo – nở hậu
- Diện tích: 370 m²
- Phòng ngủ: 3
- Số tầng: 4
- Tầng hầm: 0
- Khách hàng: Chị Hảo
- Địa chỉ: Nam Định
- Chi phí xây dựng: 2,2 tỷ
- Tổng chi phí: 2,7 tỷ
Mô tả dự án
Kiến trúc thiết kế khéo léo cho thửa đất méo và nở hậu
Thửa đất của chị Hảo có hình dáng không vuông vức, phần đầu hẹp chỉ 4,1m và nở rộng dần về phía sau. Đây là kiểu đất khá phổ biến tại các khu đô thị cũ, gây khó khăn trong việc bố trí mặt bằng và đảm bảo tính thẩm mỹ mặt tiền.

Hiểu rõ điều đó, kiến trúc sư ATX HOME đã xử lý hình khối mặt tiền theo hướng hiện đại, mạch lạc và có điểm nhấn hợp lý. Phần cong mềm được đưa vào để che khéo các góc xiên của công trình, đồng thời tạo cảm giác ngôi nhà cân đối, dễ nhìn hơn.
Các chi tiết như lam gỗ, ban công trồng cây, và mảng tường trắng phẳng được phối hợp hài hòa, giúp ngôi nhà trở nên thanh thoát, sáng sủa và gần gũi với thiên nhiên. Nhờ cách xử lý hợp lý, người nhìn khó nhận ra rằng công trình được xây trên một thửa đất méo.
Mẫu thiết kế này không chỉ mang lại vẻ ngoài thẩm mỹ, mà còn cho thấy tư duy thực tế và khả năng tối ưu không gian của đội ngũ kiến trúc sư ATX HOME – một hướng tiếp cận phù hợp với những gia chủ có lô đất tương tự.

Mặt bằng công năng tối ưu từng mét vuông trên nền đất méo
Không gian ngôi nhà được thiết kế theo hướng mở, linh hoạt, đón sáng tự nhiên, khắc phục hoàn toàn nhược điểm của thế đất xiên, giúp không gian sử dụng hợp lý và tiện nghi.
Tầng 1 – Không gian kết hợp sinh hoạt và kinh doanh
Phía trước là khu vực bán hàng rộng thoáng, nối tiếp là phòng khách và khu bếp + ăn liên thông nhau, tạo cảm giác liền mạch và thoáng đãng. Các mảng cây xanh dọc tường giúp cân bằng không khí và ánh sáng.

Tầng 2 – Phòng ngủ master thoáng rộng
Với diện tích 30m², phòng ngủ master được bố trí ở phần nở hậu – nơi có mặt thoáng lớn nhất, giúp tận dụng tối đa ánh sáng tự nhiên. KTS khéo léo bố trí thêm ban công và WC riêng để tăng sự tiện nghi và riêng tư.

Tầng 3 – Bố trí linh hoạt cho không gian sống và làm việc
Gồm hai phòng ngủ, trong đó phòng ngủ 2 hướng ra ban công, có WC khép kín. Phòng ngủ 3 rộng rãi tới 37 m², có khu thay đồ, khu làm việc và WC riêng. Nhờ thiết kế thông tầng và hệ cửa sổ đối lưu, các không gian luôn sáng và thoáng dù nằm ở khu đất có hình dạng phức tạp.

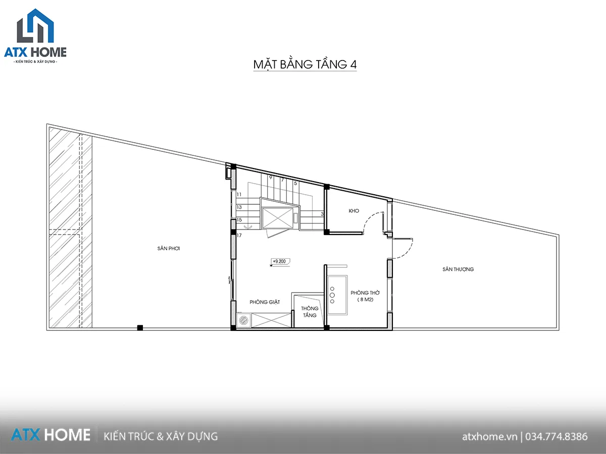
Tầng 4 – Không gian gắn kết và nghỉ ngơi
Tầng thượng bố trí phòng thờ hướng ra sân vườn, kết hợp phòng giặt, kho và sân phơi, sân thượng. Đây là nơi gia đình có thể thư giãn, chăm cây hoặc tổ chức những buổi gặp mặt nhỏ cuối tuần.

ATX HOME – Đơn vị thiết kế có kinh nghiệm xử lý những thửa đất “khó”
Với kinh nghiệm thực tế từ hàng trăm công trình, ATX HOME luôn biết cách tận dụng đặc điểm riêng của từng thửa đất để đưa ra phương án thiết kế hợp lý, thẩm mỹ và tiết kiệm chi phí. Dù là đất méo, nở hậu, thóp hậu hay hẹp ngang, đội ngũ kiến trúc sư của ATX HOME đều có giải pháp bố trí công năng phù hợp và xử lý hình khối khéo léo, giúp ngôi nhà vừa đẹp, vừa đáp ứng tốt nhu cầu sử dụng của gia chủ.
Bằng chuyên môn vững chắc và tư duy sáng tạo, đội ngũ kiến trúc sư ATX HOME luôn tìm ra giải pháp thiết kế phù hợp nhất với địa hình thực tế, đảm bảo:
-
Tối đa hóa công năng sử dụng mà vẫn hài hòa về thẩm mỹ.
-
Tận dụng ánh sáng và gió tự nhiên, giúp nhà luôn thoáng mát.
-
Bố trí phong thủy hợp lý, mang lại may mắn và tài lộc cho gia chủ.
-
Thi công chuẩn kỹ thuật, cam kết độ bền vững và an toàn lâu dài.
Chính sự linh hoạt trong xử lý không gian cùng tư duy thiết kế đột phá đã giúp ATX HOME được hàng trăm khách hàng tin tưởng lựa chọn trong suốt nhiều năm qua.
Bạn đang sở hữu mảnh đất méo, hẹp hoặc địa hình khó xử lý? Hãy để ATX HOME giúp bạn đưa ra phương án hoàn hảo với mảnh đất của bạn. Bạn có thể liên hệ với ATX HOME theo số hotline 034.774.8386.

