Mẫu nhà mái Thái 2 tầng đơn giản nhưng tiện nghi vô cùng
- Diện tích: 280 m²
- Phòng ngủ: 4
- Số tầng: 2
- Tầng hầm: 0
- Khách hàng: Anh Cường
- Địa chỉ: Lạng Sơn
- Chi phí xây dựng: 1,1 tỷ
- Tổng chi phí: 1,7 tỷ
Mô tả dự án
Ngôi nhà mái Thái 2 tầng của anh Cường tại Lạng Sơn là sự kết hợp hoàn hảo giữa phong cách kiến trúc truyền thống và hơi thở hiện đại. Với tổng chi phí hoàn thiện khoảng 1,7 tỷ đồng, công trình mang đến không gian sống tiện nghi, thông thoáng và bền vững theo thời gian.

Ngoại thất sang trọng và bền vững theo thời gian
Công trình nổi bật với kiến trúc mái Thái truyền thống, kết hợp cùng đường nét thiết kế hiện đại. Mái dốc giật cấp tinh tế không chỉ mang lại vẻ đẹp thanh thoát mà còn giúp ngôi nhà chống nóng, thoát nước tốt, phù hợp với khí hậu miền núi Lạng Sơn.
Tổng thể công trình sử dụng tông màu be sáng phối xám nâu, tạo cảm giác ấm áp và sang trọng. Phần mặt tiền được nhấn mạnh bằng hệ cột trụ vuông – tròn kết hợp, vừa khỏe khoắn vừa mềm mại, tạo điểm tựa vững chắc cho khối kiến trúc phía trên.
Đặc biệt, ban công tầng 2 được thiết kế đối xứng, lan can sắt mỹ thuật uốn cong tinh xảo, giúp mặt tiền thêm duyên dáng. Cửa kính lớn với khung nhôm đen hiện đại giúp lấy sáng tự nhiên tối đa, đồng thời mở rộng tầm nhìn ra không gian xanh bên ngoài.
Tổng thể kiến trúc là sự giao hòa giữa truyền thống và hiện đại, mang vẻ đẹp trang nhã mà vẫn toát lên cá tính riêng của gia chủ.

Mặt bằng công năng thiết kế khoa học, tối ưu diện tích sử dụng
Không chỉ ấn tượng về hình khối, ngôi nhà còn ghi điểm nhờ cách bố trí công năng hợp lý. Các phòng được sắp xếp khoa học, đảm bảo tiện nghi và sự riêng tư cho từng thành viên.
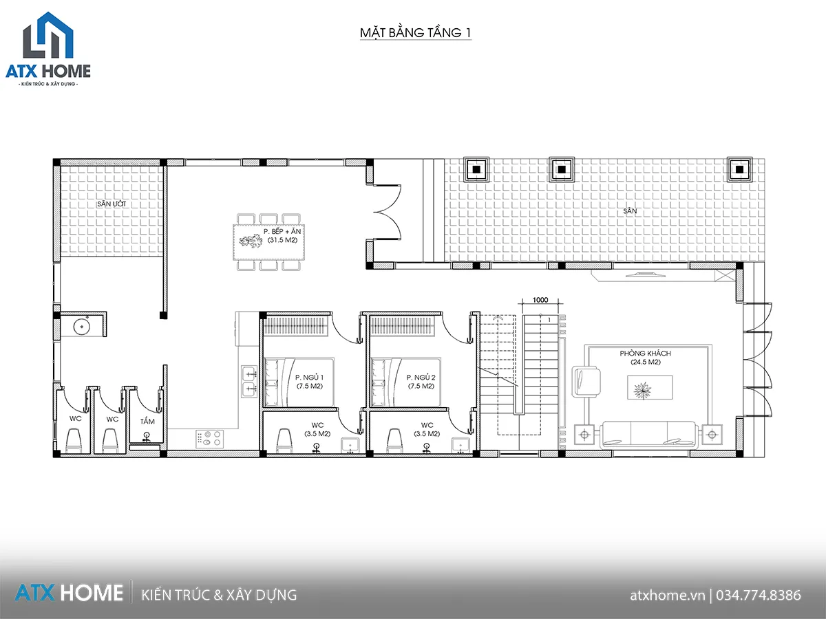
Tầng 1 – Không gian sinh hoạt chính rộng thoáng, tiện nghi
Tầng 1 bao gồm:
-
Phòng khách (24.5m²) nằm ở mặt tiền, là không gian đón tiếp khách và sinh hoạt chung của gia đình. Thiết kế mở giúp đón ánh sáng và gió tự nhiên, tạo cảm giác thoáng đãng.
-
Phòng bếp + ăn (31.5m²) đặt phía sau, kết nối trực tiếp với sân ướt giúp việc nấu nướng và dọn dẹp thuận tiện hơn.
-
Hai phòng ngủ (7.5m²) được bố trí dọc hành lang, thuận tiện di chuyển, có WC riêng và đảm bảo sự riêng tư.
-
Khu WC và tắm riêng biệt giúp việc sinh hoạt hàng ngày trở nên tiện lợi và gọn gàng.
Thiết kế tầng 1 chú trọng sự tiện nghi, thoáng sáng và lưu thông không khí, mang lại cảm giác thoải mái cho cả gia đình.

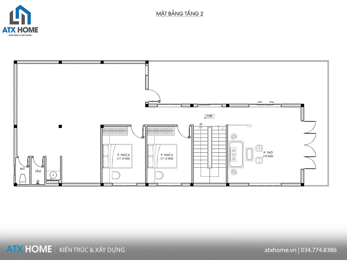
Tầng 2 – Không gian riêng tư và tâm linh yên tĩnh
Tầng 2 được thiết kế với:
-
Phòng thờ (19m²) nằm ở vị trí trung tâm, hướng ra ban công lớn, đảm bảo yếu tố phong thủy và không gian tôn nghiêm.
-
Hai phòng ngủ (11.5m² mỗi phòng) bố trí liền kề, đều có cửa sổ hướng sáng tự nhiên, giúp không gian luôn thông thoáng.
-
Khu WC và phòng tắm riêng được tách biệt, tối ưu sự tiện lợi cho sinh hoạt.
-
Khoảng sân phơi rộng phía sau đảm bảo ánh nắng và gió lưu thông tốt.
Sự sắp xếp khoa học giúp tầng 2 vừa đáp ứng nhu cầu nghỉ ngơi, vừa tạo cảm giác yên bình và thoáng đãng.

Chi phí xây dựng hợp lý cho một công trình tiện nghi
Với mức chi phí hoàn thiện 1,7 tỷ đồng, ngôi nhà không chỉ đạt tính thẩm mỹ cao mà còn đảm bảo chất lượng bền bỉ:
-
Mái ngói Thái cao cấp, độ dốc chuẩn, chống thấm hiệu quả.
-
Cửa nhôm Xingfa kết hợp kính cường lực, vừa bền vừa sang.
-
Sơn ngoại thất Jotun cao cấp chống rêu mốc.
-
Gạch ốp lát Prime và Viglacera tạo điểm nhấn tinh tế cho không gian.
Đây là lựa chọn hoàn hảo cho các gia đình có quỹ đất vừa phải, mong muốn sở hữu ngôi nhà bền đẹp, tiện nghi và mang phong cách riêng.

ATX HOME – đồng hành cùng bạn trên hành trình xây tổ ấm
Với kinh nghiệm lâu năm trong thiết kế và thi công nhà ở trọn gói, ATX HOME luôn nỗ lực mang đến cho khách hàng giải pháp kiến trúc tối ưu nhất đảm bảo thẩm mỹ, công năng và chi phí đầu tư hợp lý. Chúng tôi tự hào khi mỗi công trình không chỉ là “một ngôi nhà”, mà còn là một dấu ấn riêng của từng gia chủ.
ATX HOME cam kết:
-
Thiết kế độc quyền, đúng phong thủy, đúng công năng.
-
Thi công chuẩn kỹ thuật, vật liệu cao cấp.
-
Cam kết không phát sinh chi phí, bàn giao đúng tiến độ.
Nếu anh/chị đang tìm kiếm một mẫu nhà đẹp, tiết kiệm chi phí và mang đậm dấu ấn cá nhân, hãy liên hệ ngay với ATX HOME theo số hotline 034.774.8386 để được tư vấn ngay hôm nay!

