Mẫu nhà mái Nhật 1 tầng rộng rãi & tiện nghi

  • Diện tích: 210 m²
  • Phòng ngủ: 4
  • Số tầng: 1
  • Tầng hầm: 0
  • Khách hàng: Chú Huỳnh
  • Địa chỉ: Quảng Ninh
  • Chi phí xây dựng: 1,4 tỷ
  • Tổng chi phí: 1,9 tỷ

Mô tả dự án

Tổng quan ngoại thất – Hiện đại, vững chãi và tinh tế

Ngôi nhà mái Nhật này thu hút ngay từ cái nhìn đầu tiên bởi tỷ lệ hình khối cân đối và mái xanh than đặc trưng, mang đến vẻ đẹp thanh lịch, bền dáng theo thời gian.

Mẫu nhà mái Nhật 1 tầng rộng rãi & tiện nghi

Hệ mái Nhật xanh than sang trọng

Mái Nhật giật cấp nhẹ, đua rộng giúp thoát nước tốt và chống nóng hiệu quả. Phần mái được hoàn thiện bằng ngói cao cấp, vừa đảm bảo độ bền, vừa tôn lên sự sang trọng cho tổng thể công trình.

Mặt tiền cân đối, vật liệu hiện đại

Cửa chính gỗ tự nhiên kết hợp kính sáng tạo điểm nhấn sang trọng, đồng thời giúp ánh sáng tự nhiên tràn ngập bên trong. Hệ cửa sổ nhôm xingfa hiện đại, khung nâu sẫm tạo sự tương phản hài hòa với tường trắng – vàng kem chủ đạo.

Chân tường được ốp đá granite tối màu, giúp chống ẩm, chống bẩn và tạo độ vững chắc cho khối nhà. Khu sảnh được thiết kế bậc ngũ cấp cao ráo, kết hợp tiểu cảnh xanh mềm mại giúp mặt tiền luôn cuốn hút.

Mẫu nhà mái Nhật 1 tầng rộng rãi & tiện nghi

Cảnh quan quanh nhà

Xung quanh nhà được bố trí lối đi lát gạch, trồng cây cảnh và hoa thấp tầng, tạo không gian thư giãn nhẹ nhàng, hòa hợp thiên nhiên – yếu tố đặc trưng của phong cách mái Nhật.

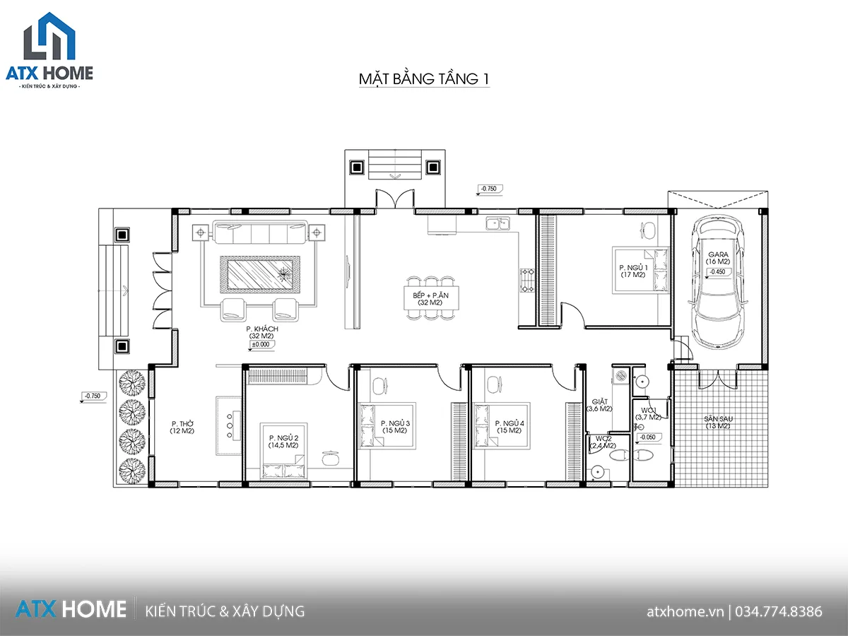
Mặt bằng công năng – Tiện nghi, rộng rãi và hợp lý

Bản vẽ cho thấy cách bố trí công năng khoa học, giúp tối ưu diện tích sử dụng và thuận tiện sinh hoạt cho gia đình có nhiều thế hệ.

Mẫu nhà mái Nhật 1 tầng rộng rãi & tiện nghi

Bố trí không gian

Từ sảnh chính bước vào là phòng khách 32m², không gian trung tâm kết nối trực tiếp khu vực bếp ăn rộng 22m², tạo nên mạch sinh hoạt liền mạch, thông thoáng.

Phía sau phòng khách là phòng thờ 12m² đặt trang trọng, đúng hướng phong thủy, đảm bảo yếu tố tâm linh và sự tôn nghiêm.

Khu vực nghỉ ngơi

Ngôi nhà có 4 phòng ngủ được sắp xếp dọc hai bên hành lang, đảm bảo riêng tư và yên tĩnh.

  • Phòng ngủ 1 (17m²) có vị trí gần gara, thuận tiện di chuyển.

  • Phòng ngủ 2 (14,5m²), phòng ngủ 3 và 4 (15m²) nằm ở giữa nhà, tiếp cận ánh sáng tự nhiên từ cửa sổ bên hông.

Mẫu nhà mái Nhật 1 tầng rộng rãi & tiện nghi

Tiện ích sinh hoạt

  • Hai WC chung (3,7m² và 2,4m²) bố trí hợp lý giữa các phòng, giúp sử dụng thuận tiện cho cả gia đình.

  • Khu giặt 3,6m² nằm gần sân sau, tạo không gian phơi đồ và sinh hoạt phụ gọn gàng, kín đáo.

  • Gara ô tô 16m² có lối ra sân sau riêng, đảm bảo giao thông tách biệt với khu sinh hoạt.

Tổng thể mặt bằng tạo nên một bố cục cân đối – tiện dụng – hợp lý, phù hợp cho gia đình có 4-6 thành viên sinh sống thoải mái, tiện nghi.

Mẫu nhà mái Nhật 1 tầng rộng rãi & tiện nghi

ATX HOME – Đơn vị thiết kế & thi công nhà mái Nhật uy tín hàng đầu

Với kinh nghiệm thực hiện hàng trăm công trình trên toàn quốc, ATX HOME luôn được khách hàng tin tưởng bởi:

  • Thiết kế chuẩn phong thủy, đúng nhu cầu sử dụng từng gia đình.

  • Giám sát thi công chặt chẽ, đảm bảo công trình thực tế giống bản vẽ 3D.

  • Giải pháp tiết kiệm chi phí, nhưng vẫn đảm bảo chất lượng và thẩm mỹ.

Chúng tôi không chỉ tạo ra những ngôi nhà đẹp mà còn giúp khách hàng xây dựng tổ ấm an yên, bền vững – nơi gắn kết cả gia đình qua từng chi tiết nhỏ.

Liên hệ ATX HOME:

📞 Hotline: 034.774.8386

📘 Facebook: Công ty TNHH Kiến trúc & Xây dựng ATX HOME

🌐 Website: atxhome.vn

Đánh giá