Mẫu nhà mái bằng 3 tầng 4 phòng ngủ tiện nghi chỉ với 1,7 tỷ đồng
- Diện tích: 210 m²
- Phòng ngủ: 4
- Số tầng: 3 tầng
- Tầng hầm: 0
- Khách hàng: Anh Đắc
- Địa chỉ: Nam Định
- Chi phí xây dựng: 1,4 Tỷ
- Tổng chi phí: 1,7 tỷ
Mô tả dự án
Ngôi nhà 3 tầng của anh Bắc tại Nam Định là một trong những công trình tiêu biểu do ATX HOME thiết kế và thi công. Với phong cách hiện đại tinh giản, bố cục công năng hợp lý cùng chi phí đầu tư chỉ khoảng 1,7 tỷ đồng, công trình mang đến không gian sống thoáng đãng, tiện nghi và đầy ấm cúng cho gia đình bốn thế hệ.

Kiến trúc hiện đại, tinh tế trong từng đường nét
Ngôi nhà được thiết kế theo phong cách hiện đại, với các khối hình vuông vức, mạch lạc và điểm nhấn bằng chất liệu gỗ ốp, kính cường lực và sơn giả đá. Tông màu trung tính chủ đạo xám – trắng – nâu gỗ tạo cảm giác vừa sang trọng vừa gần gũi, hòa quyện cùng không gian xanh tự nhiên xung quanh.
Các ban công được mở rộng, sử dụng lan can kính trong suốt giúp ngôi nhà đón nắng và gió tự nhiên tối đa. Phần mái bằng được thiết kế gọn gàng, tối ưu công năng và chi phí, đồng thời tăng tính thẩm mỹ hiện đại cho tổng thể mặt tiền.

Mặt bằng công năng tiện nghi và thông thoáng
Tầng 1 – Không gian sinh hoạt chung ấm cúng
Ngay từ lối vào là phòng khách 20m², thiết kế liên thông với phòng bếp – ăn 21m², giúp không gian mở rộng và dễ kết nối giữa các thành viên trong gia đình. Bên cạnh đó, tầng này còn có 1 phòng ngủ 13m² phù hợp cho người lớn tuổi, cùng 1 phòng vệ sinh chung 5,4m² được bố trí gọn gàng, tiện lợi cho sinh hoạt hằng ngày.

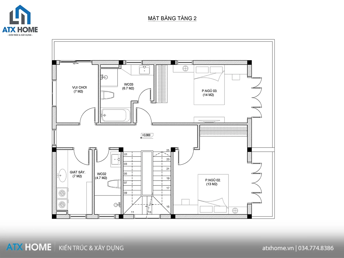
Tầng 2 – Khu nghỉ ngơi riêng tư và tiện nghi
Tầng 2 gồm 2 phòng ngủ (13m² và 14m²), mỗi phòng đều có cửa sổ đón sáng và view hướng ra ban công. Giữa hai phòng là khu sinh hoạt – vui chơi (7m²) giúp gia đình có không gian thư giãn. Ngoài ra còn có phòng giặt sấy riêng biệt (7m²) và 2 phòng vệ sinh, đảm bảo sự thuận tiện và sạch sẽ.

Tầng 3 – Không gian tâm linh và thư giãn
Tầng thượng được bố trí phòng thờ 15m² trang nghiêm, hướng ra sân trước rộng thoáng – nơi có thể bố trí tiểu cảnh hoặc bàn trà ngoài trời. Phía sau là sân phơi 32m² và khu sân có mái che, tận dụng tối đa diện tích phục vụ sinh hoạt. Đây cũng là tầng mang đến cảm giác yên bình, thoáng đãng sau mỗi ngày làm việc.

6. ATX HOME – Đơn vị thiết kế và thi công nhà ở uy tín trên toàn quốc
Mẫu nhà 3 tầng của anh Bắc là sự kết hợp hài hòa giữa tính thẩm mỹ, công năng và chi phí hợp lý. Đây là lựa chọn hoàn hảo cho những gia đình yêu thích phong cách hiện đại, mong muốn một không gian sống tiện nghi, thoáng đãng và phù hợp với khí hậu Việt Nam.
Từ những công trình như ngôi nhà của anh Bắc tại Nam Định, ATX HOME khẳng định vị thế là đơn vị thiết kế – thi công nhà ở chuyên nghiệp, luôn đặt chất lượng, thẩm mỹ và sự hài lòng của khách hàng lên hàng đầu.
Với đội ngũ kiến trúc sư sáng tạo, kỹ sư dày dạn kinh nghiệm và quy trình thi công chuẩn mực, ATX HOME đã thực hiện hàng trăm công trình trên khắp các tỉnh thành Việt Nam từ nhà phố, biệt thự đến nhà vườn. Mỗi bản thiết kế đều được nghiên cứu kỹ lưỡng để đáp ứng nhu cầu, phong cách sống và ngân sách riêng của từng gia chủ.
Nếu bạn đang tìm kiếm một ngôi nhà đẹp, tối ưu công năng và phù hợp với ngân sách, hãy để ATX HOME đồng hành cùng bạn trong hành trình kiến tạo tổ ấm mơ ước. Bạn hãy liên hệ ngay với ATX HOME theo số hotline 034.774.8386.

