Mẫu nhà mái bằng 1 tầng 2 phòng ngủ chi phí chỉ 1 tỷ đồng
- Diện tích: 130 m²
- Phòng ngủ: 2
- Số tầng: 1 tầng
- Tầng hầm: 0
- Khách hàng: Anh Nam
- Địa chỉ: Ninh Bình
- Chi phí xây dựng: 800 Triệu
- Tổng chi phí: 1 tỷ
Mô tả dự án
Ngôi nhà mái bằng 1 tầng của anh Nam tại Ninh Bình là minh chứng cho xu hướng “đơn giản mà tinh tế” trong thiết kế nhà ở hiện đại. Với diện tích 130m², chi phí đầu tư chỉ khoảng 1 tỷ đồng, công trình mang đến một không gian sống tiện nghi, sang trọng.

Kiến trúc đơn giản mà hiện đại
Công trình được thiết kế theo phong cách hiện đại, với khối nhà ngang vững chãi, mái bằng trẻ trung và hệ cửa kính lớn giúp không gian bên trong luôn tràn ngập ánh sáng tự nhiên. Mặt tiền ngôi nhà sử dụng tông trắng kết hợp xám ghi và gỗ nhấn trần, tạo cảm giác sang trọng và ấm cúng. Phần lam chắn nắng vừa tăng thẩm mỹ, vừa giúp giảm nhiệt hiệu quả cho khu vực sảnh chính.
Tổng thể công trình gọn gàng nhưng vẫn thể hiện được sự tinh tế, phù hợp với gia đình có từ 3–4 thành viên yêu thích phong cách sống tối giản, tiện nghi.

Công năng khoa học, tiện nghi
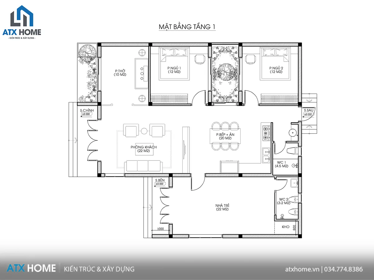
Bố trí mặt bằng hợp lý, tối ưu công năng sử dụng. Mẫu nhà của anh Nam có mặt bằng được chia rõ ràng giữa không gian sinh hoạt chung và khu vực nghỉ ngơi riêng tư, đảm bảo vừa thuận tiện, vừa kín đáo:
-
Phòng khách (22m²): Không gian trung tâm, kết nối trực tiếp với phòng bếp ăn, tạo cảm giác rộng mở và gắn kết.
-
Phòng bếp + ăn (20m²): Bố trí gọn gàng, đầy đủ công năng, kết hợp cửa sau giúp thoáng khí, tránh ám mùi.
-
Phòng thờ (10m²): Vị trí trang nghiêm, tách nhẹ khỏi khu sinh hoạt, đảm bảo sự yên tĩnh và tôn kính.
-
2 phòng ngủ (mỗi phòng 12m²): Thiết kế cân đối hai bên nhà, có cửa sổ lớn mở ra tiểu cảnh giữa nhà, giúp lưu thông gió và ánh sáng tự nhiên.
-
2 phòng vệ sinh (4,5m² và 3,2m²): Bố trí hợp lý, tiện sử dụng cho cả gia đình.
-
Phòng nhà trẻ (22m²): Có thể tận dụng làm phòng sinh hoạt chung, phòng làm việc hoặc không gian vui chơi cho trẻ nhỏ.
Điểm nhấn đặc biệt là khoảng tiểu cảnh giữa nhà, vừa mang đến sự thư thái, vừa giúp không khí trong lành lan tỏa khắp không gian.

Giải pháp thiết kế và thi công đẹp bền theo thời gian
Với chi phí chỉ khoảng 1 tỷ đồng, ATX HOME đã áp dụng nhiều giải pháp tối ưu chi phí mà vẫn đảm bảo chất lượng và thẩm mỹ:
-
Tường sơn trắng kết hợp ốp đá xám chống bám bẩn, dễ vệ sinh.
-
Cửa nhôm Xingfa cao cấp, lấy sáng tối đa và tạo sự sang trọng.
-
Mái bằng chống thấm 2 lớp, kết hợp sơn chống nóng giúp nhà mát mẻ quanh năm.
-
Sàn lát gạch vân đá tối màu, tăng cảm giác sạch sẽ và sang trọng.

ATX HOME – Đơn vị thiết kế và thi công nhà ở uy tín trên toàn quốc
Ngôi nhà mái bằng 1 tầng của anh Nam tại Ninh Bình là hình mẫu hoàn hảo cho xu hướng “nhà nhỏ – sống chất” hiện nay. Dù diện tích chỉ 130m², công trình vẫn đảm bảo đầy đủ công năng, tiện nghi và tính thẩm mỹ cao. Đây chắc chắn là lựa chọn đáng cân nhắc cho những ai muốn sở hữu một ngôi nhà hiện đại, tiết kiệm và dễ chăm sóc.
Từ những công trình thực tế như nhà anh Nam tại Ninh Bình, ATX HOME khẳng định vị thế là đơn vị thiết kế – thi công nhà ở chuyên nghiệp, luôn đồng hành cùng khách hàng từ ý tưởng đến thực tế. Với đội ngũ kiến trúc sư sáng tạo, kỹ sư tận tâm và quy trình làm việc bài bản, ATX HOME đã thực hiện hàng trăm công trình trên khắp Việt Nam từ nhà cấp 4, nhà phố cho đến biệt thự cao cấp.
ATX HOME cam kết mang đến cho khách hàng ngôi nhà bền đẹp, tiện nghi và tối ưu ngân sách, để mỗi tổ ấm đều là nơi trọn vẹn hạnh phúc. Nếu bạn đang có nhu cầu xây nhà ở, hãy liên hệ với ATX HOME theo số hotline 034.774.8386 để được các kiến trúc sư, kỹ sư của chúng tôi tư vấn giải pháp phù hợp nhất!
.

