Mẫu nhà lô phố 5 tầng mặt tiền hẹp 5m cực tối ưu công năng
- Diện tích: 430 m²
- Phòng ngủ: 4
- Số tầng: 5
- Tầng hầm: 0
- Khách hàng: Bác Dung
- Địa chỉ: Ninh Bình
- Chi phí xây dựng: 2,6 Tỷ
- Tổng chi phí: 3,2 tỷ
Mô tả dự án
Với tổng diện tích 430m², ngôi nhà 5 tầng của bác Dung tại Hà Giang được ATX HOME thiết kế theo phong cách hiện đại, sang trọng và tiện dụng. Dù sở hữu mặt tiền hẹp 5m, công trình vẫn đảm bảo đầy đủ không gian sinh hoạt, nghỉ ngơi, thư giãn cho cả gia đình nhiều thế hệ.

Kiến trúc mặt tiền tinh gọn, hiện đại và sang trọng
Ngôi nhà gây ấn tượng với mặt tiền cân đối, hình khối rõ ràng và sử dụng vật liệu hiện đại như kính, đá ốp tối màu và lam gỗ nhựa trang trí. Các chi tiết kiến trúc được tính toán hợp lý để tạo cảm giác cao thoáng mà không rối mắt, đồng thời vẫn giữ được sự ấm cúng và gần gũi.
Tầng trệt được ốp đá tự nhiên đen vân mây, vừa sang trọng vừa dễ vệ sinh. Phần ban công kính trong suốt kết hợp lam gỗ dọc mang lại điểm nhấn tự nhiên, giúp công trình hài hòa giữa thẩm mỹ và công năng.

Mặt bằng công năng tối ưu cho gia đình đông thành viên
Ngôi nhà có 5 tầng, được bố trí công năng hợp lý để đáp ứng đầy đủ nhu cầu sinh hoạt, nghỉ ngơi và tiếp khách.

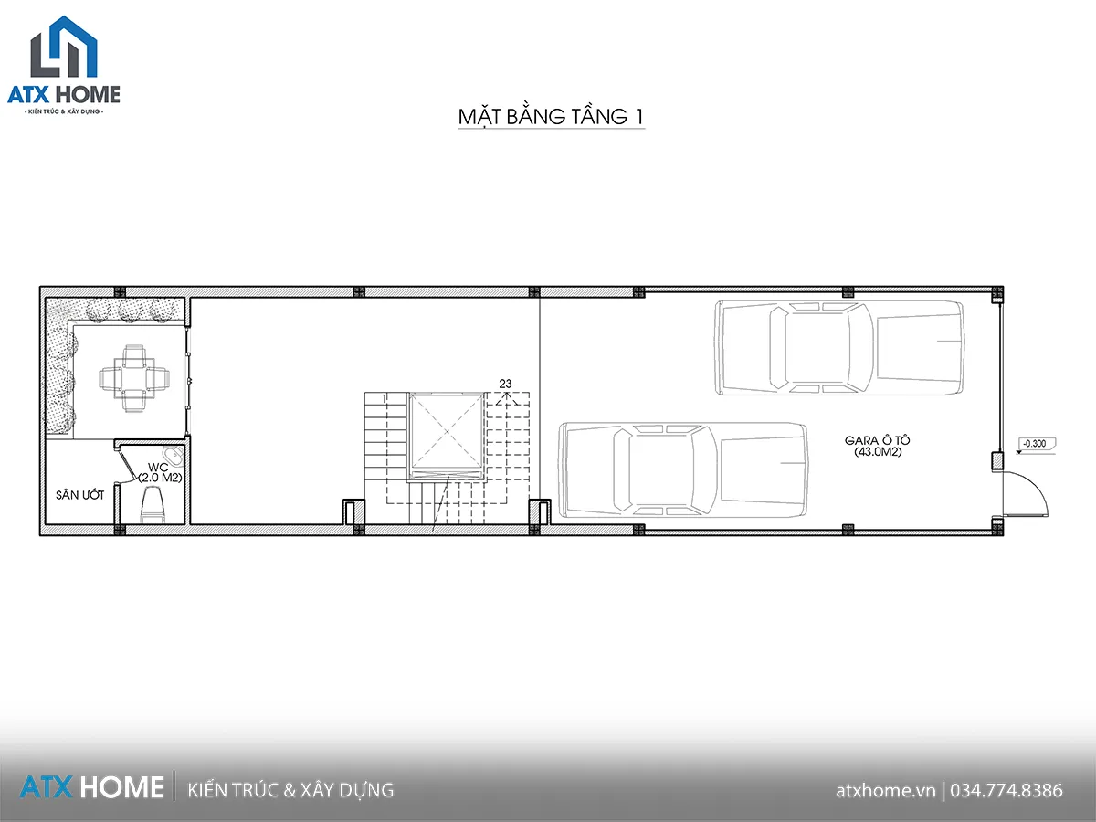
Tầng 1 – Gara và khu sinh hoạt phụ
Toàn bộ tầng 1 được thiết kế làm gara ô tô rộng 43m², đủ chỗ cho 2 xe. Phía sau là khu sân ướt và WC nhỏ, tiện cho việc rửa xe hoặc sinh hoạt ngoài trời.

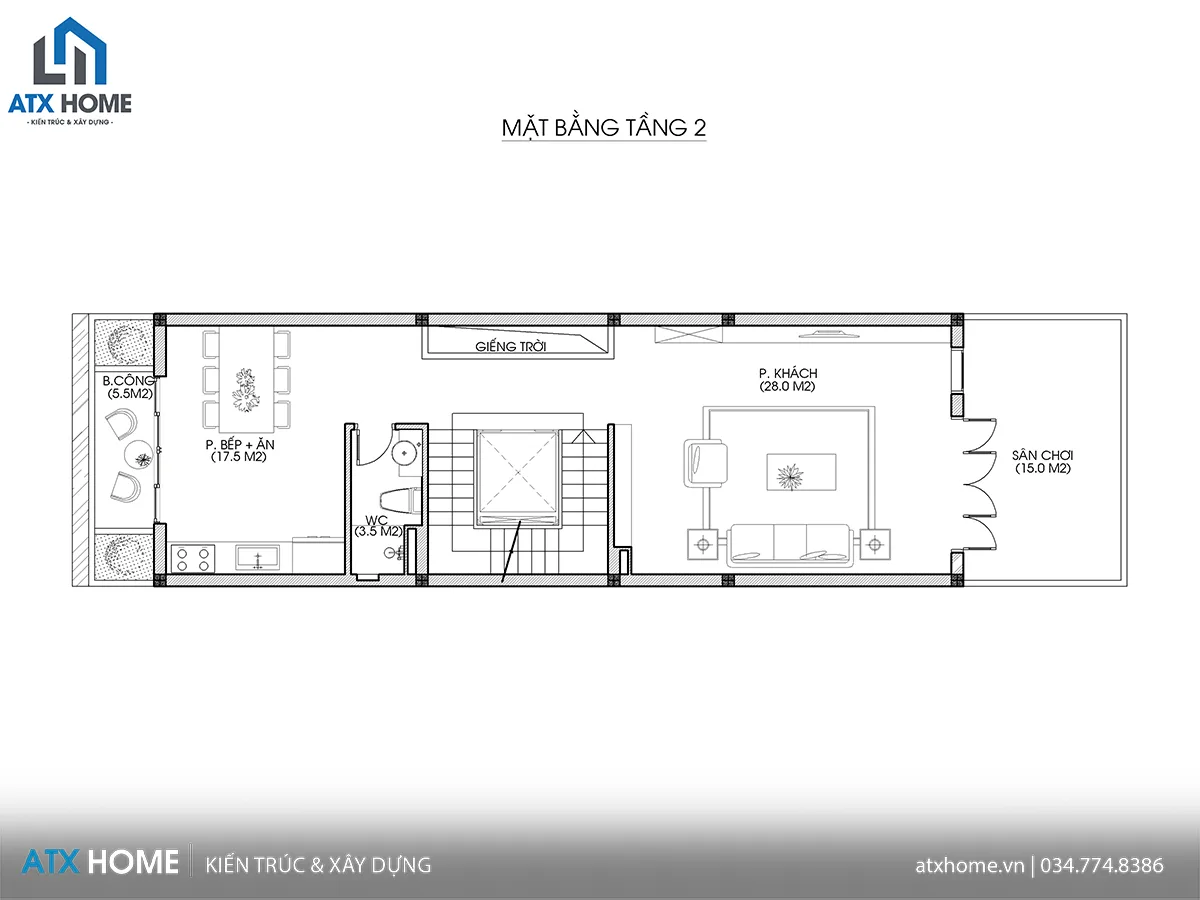
Tầng 2 – Không gian sinh hoạt chính của gia đình
Tầng 2 bố trí phòng khách lớn 28m² liên thông với bếp + ăn 17,5m², tạo cảm giác thoáng mở. Phía trước và sau nhà đều có ban công và sân chơi, giúp lấy sáng và gió tự nhiên, đồng thời tạo khoảng nghỉ thư giãn cho các thành viên.

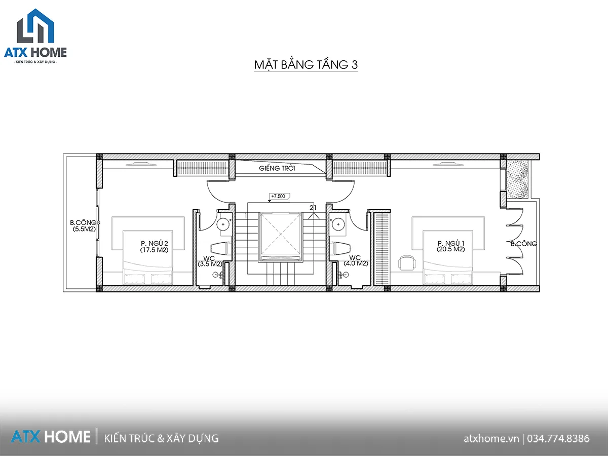
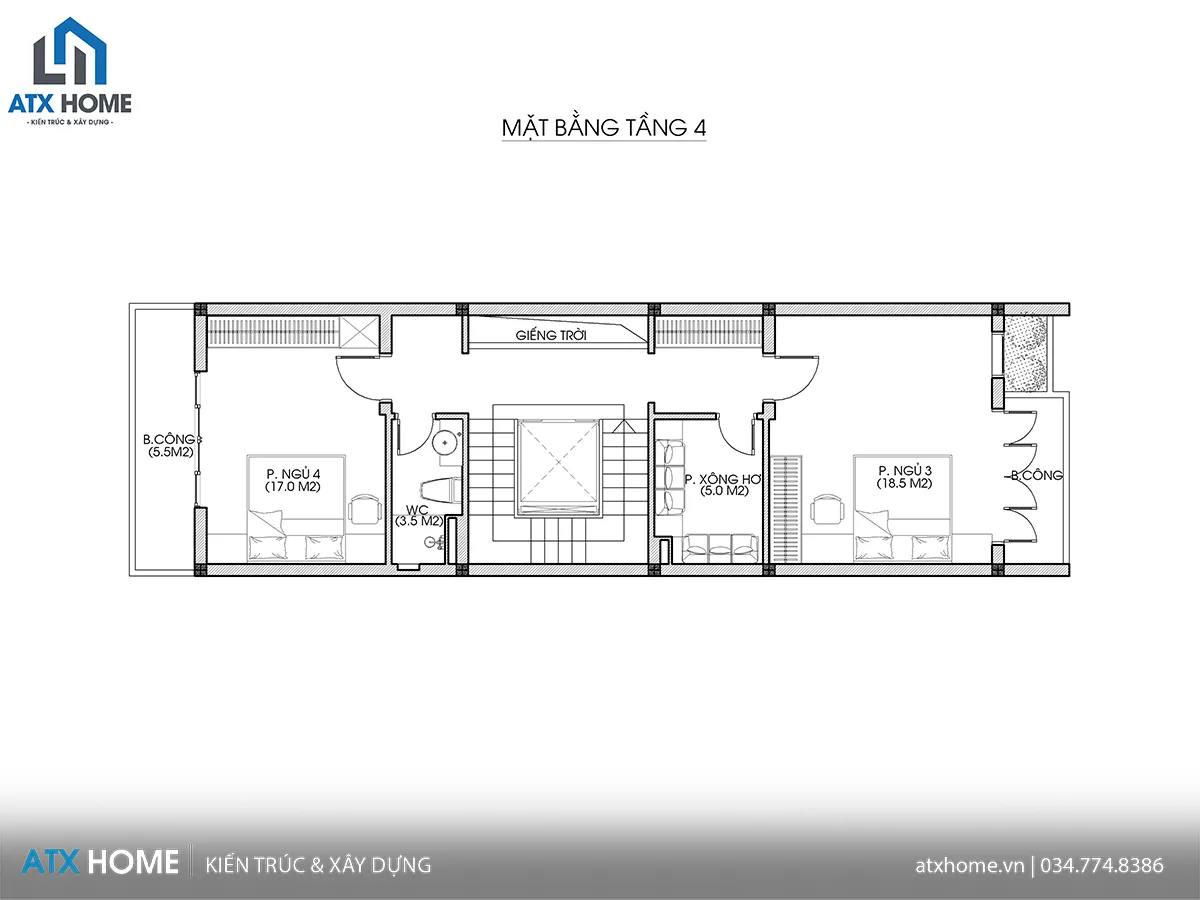
Tầng 3 & 4 – Khu vực nghỉ ngơi riêng tư
Hai tầng này được bố trí 4 phòng ngủ rộng rãi. Tầng 3 mỗi phòng đều có WC riêng và ban công. Tầng 4 có 2 phòng ngủ và còn được tích hợp thêm phòng xông hơi, giúp gia chủ thư giãn sau ngày dài làm việc – một tiện ích hiếm thấy ở nhà phố hiện nay.


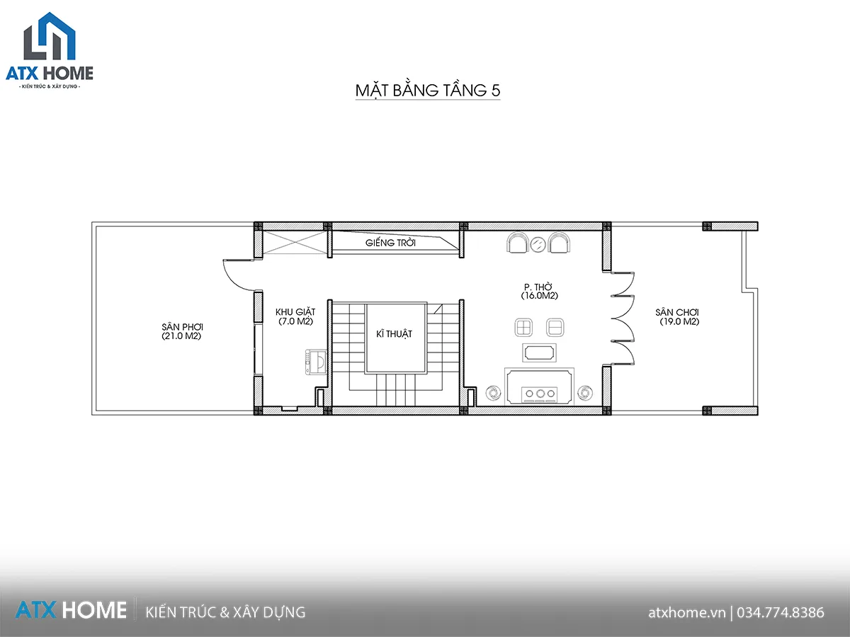
Tầng 5 – Không gian tâm linh và sinh hoạt chung
Trên cùng là phòng thờ 16m², đặt ở vị trí cao và thông thoáng. Phía sau là sân phơi – khu giặt, phía trước là sân chơi 19m², nơi cả gia đình có thể trồng cây hoặc ngắm cảnh thành phố.

ATX HOME – Đơn vị thiết kế và thi công nhà ở được nhiều gia chủ tin tưởng
ATX HOME là đơn vị chuyên sâu trong lĩnh vực thiết kế – thi công nhà phố, biệt thự và nhà ở dân dụng, với đội ngũ kiến trúc sư và kỹ sư có kinh nghiệm thực tế, tư duy thiết kế rõ ràng, kỹ thuật thi công chuẩn mực.
Chúng tôi luôn đặt yếu tố thực tế và tính ứng dụng lên hàng đầu trong mỗi bản vẽ. Từng mét vuông công trình đều được tính toán kỹ lưỡng để đảm bảo công năng, ánh sáng, thông gió và tính bền vững lâu dài.
Với quy trình làm việc chuyên nghiệp, ATX HOME mang đến cho khách hàng:
-
Thiết kế tối ưu, công năng hợp lý, tiết kiệm chi phí.
-
Thi công đúng kỹ thuật, kiểm soát chặt chẽ tiến độ và chất lượng.
-
Chính sách bảo hành kết cấu lên tới 50 năm, mang lại sự yên tâm tuyệt đối cho gia chủ.
Mỗi ngôi nhà do ATX HOME thực hiện không chỉ là nơi ở, mà còn là tổ ấm bền vững, mang dấu ấn riêng của từng khách hàng.
Bạn đang có ý định xây nhà phố, biệt thự hay cải tạo nhà cũ? Hãy để ATX HOME đồng hành cùng bạn từ bản vẽ đến thực tế thi công, đảm bảo đúng nhu cầu, đúng chi phí, đúng chất lượng. Bạn có thể liên hệ với ATX HOME theo số hotline 034.774.8386.

