Mẫu nhà lô phố 3 tầng với thiết kế kiến trúc, công năng đáng đồng tiền
- Diện tích: 260 m²
- Phòng ngủ: 5
- Số tầng: 3
- Tầng hầm: 0
- Khách hàng: Anh Tâm
- Địa chỉ: Bắc Ninh
- Chi phí xây dựng: 1,5 tỷ
- Tổng chi phí: 1,8 tỷ
Mô tả dự án
Trên lô đất mặt tiền 6,35m, ATX HOME thiết kế ngôi nhà 3 tầng gọn, sáng và tối ưu công năng sử dụng cho gia đình anh Tâm ở Bắc Ninh.

Kiến trúc mặt tiền đơn giản, thoáng sáng
Ngôi nhà mang phong cách hiện đại, sử dụng mảng khối vuông vắn và vật liệu bền màu. Tông trắng chủ đạo kết hợp đá ốp vân tối ở tầng trệt giúp công trình nổi bật và sang trọng hơn.
Mặt tiền hài hòa, dễ thi công
Mặt tiền được chia bố cục rõ ràng, có khoảng lùi hợp lý để tạo cảm giác thông thoáng. Hệ lan can kính và lam bê tông vừa che nắng vừa làm điểm nhấn thẩm mỹ. Nhờ cách phối vật liệu hợp lý, ngôi nhà vẫn giữ được vẻ đẹp cân đối mà không cần chi tiết cầu kỳ.

Giải pháp lấy sáng tự nhiên
Hệ cửa nhôm kính lớn kết hợp giếng trời giữa nhà, giúp mọi tầng đều có ánh sáng và gió tự nhiên. Đây là yếu tố đặc trưng trong thiết kế của ATX HOME, tối ưu năng lượng, giảm chi phí sử dụng lâu dài.
Mái bằng và sân thượng thoáng đãng
Tầng mái được xử lý chống thấm kỹ lưỡng, có bố trí bồn nước, năng lượng mặt trời gọn gàng. Sân thượng có lam chắn sáng vừa đảm bảo thẩm mỹ, vừa là không gian thư giãn nhẹ cho gia đình.

Mặt bằng công năng tối ưu cho gia đình đông người
Tầng 1: Sinh hoạt chung + 1 phòng ngủ
-
Phòng khách bố trí phía trước, rộng, giao thông mạch lạc.
-
Bếp + ăn đặt riêng phía sau, thuận tiện thông ra sân ướt/thoát mùi.
-
1 phòng ngủ tầng trệt (người lớn tuổi/khách).
-
WC chung bố trí giữa nhà, gần khu thang.
Thang giữa nhà + giếng trời giúp tầng 1 luôn có sáng tự nhiên, hạn chế phải bật đèn ban ngày.

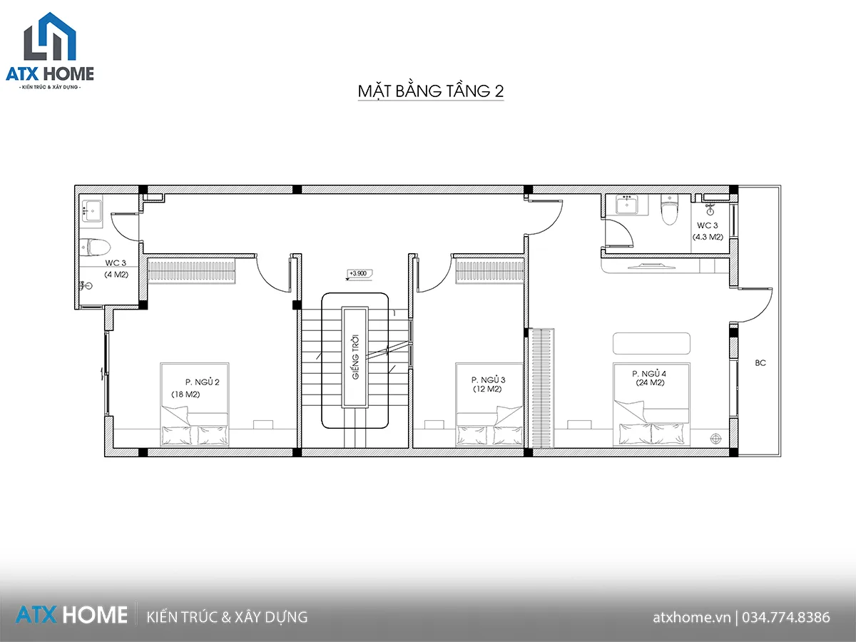
Tầng 2: Không gian ngủ chính
-
3 phòng ngủ phân theo hai bên thang, mỗi phòng đều có cửa sổ lấy sáng. Trong đó phòng ngủ 4 rộng rãi nhất và có WC khép kín thuận tiện.
-
WC bố trí hợp lý để dùng chung, giảm đường ống phức tạp.
-
Hành lang ngắn, giao thông gọn để tăng diện tích phòng.

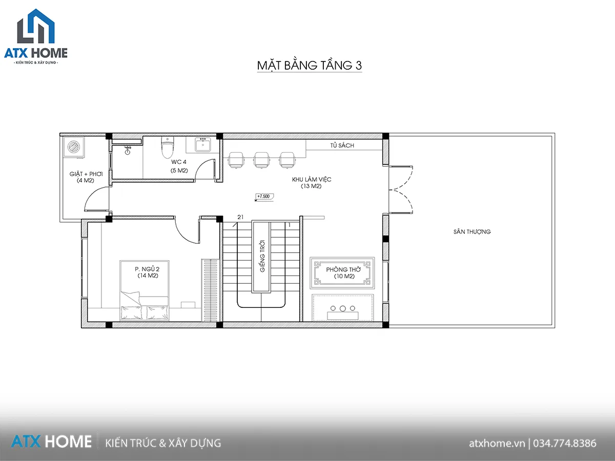
Tầng 3: Phòng ngủ thứ 5 & không gian phụ trợ
-
1 phòng ngủ thêm cho con lớn/khách dài ngày.
-
Phòng thờ đặt riêng, hướng sáng và thoáng.
-
Khu giặt phơi/sân thượng đủ rộng cho máy sấy, dàn phơi, tiểu cảnh; có thể thêm góc làm việc theo nhu cầu.
Tổng cộng 5 phòng ngủ đáp ứng gia đình nhiều thế hệ nhưng vẫn đảm bảo thông thoáng nhờ giếng trời và các ô cửa theo trục đứng.

Ưu điểm nổi bật của mẫu nhà
-
Công năng rõ ràng, dễ sử dụng cho gia đình nhiều thế hệ.
-
Ánh sáng, thông gió tự nhiên, giúp nhà luôn thoáng và tiết kiệm điện.
-
Chi phí hợp lý, dễ thi công và hoàn thiện trong thời gian ngắn.
-
Kiến trúc bền, ít lỗi thời, phù hợp nhiều vùng miền.

ATX HOME – Đơn vị thiết kế và thi công nhà ở uy tín
ATX HOME không chỉ thiết kế để “đẹp trên bản vẽ”, mà hướng tới ngôi nhà phù hợp nhất với gia đình bạn, đảm bảo đúng nhu cầu, đúng chi phí, đúng kỹ thuật. Với đội ngũ kiến trúc sư và kỹ sư giàu kinh nghiệm, ATX HOME cam kết:
-
Bản vẽ chuẩn kỹ thuật, đảm bảo công năng và phong thủy.
-
Thi công đúng thiết kế, kiểm soát chất lượng từng giai đoạn.
-
Minh bạch chi phí, không phát sinh ngoài hợp đồng.
-
Bảo hành kết cấu 50 năm, bảo hành hoàn thiện theo hạng mục.
Chúng tôi tin rằng, một ngôi nhà đẹp không chỉ nằm ở hình thức, mà ở cảm giác thoải mái mỗi khi bạn trở về. Bạn đang có lô đất tương tự tại Bắc Ninh (hoặc tỉnh lân cận)? Hãy gửi kích thước đất và nhu cầu, ATX HOME sẽ tư vấn giải pháp phù hợp nhất với bạn. Liên hệ ngay với chúng tôi theo số hotline 034.774.8386.

