Không gian sống tiện nghi & tinh tế trong ngôi nhà mái Nhật 1 tầng

  • Diện tích: 153 m²
  • Phòng ngủ: 4
  • Số tầng: 1
  • Tầng hầm: 0
  • Khách hàng: Anh Quý
  • Địa chỉ: Thanh Hóa
  • Chi phí xây dựng: 1 tỷ
  • Tổng chi phí: 1,4 tỷ

Mô tả dự án

Ngoại thất – Sự giao hòa giữa hiện đại và gần gũi

Công trình gây ấn tượng với kiến trúc mái Nhật màu nâu trầm – gam màu gợi cảm giác ấm áp, bền vững và sang trọng. Hệ mái được thiết kế giật cấp mềm mại, giúp ngôi nhà trở nên cân đối và thanh thoát hơn.

Không gian sống tiện nghi & tinh tế trong ngôi nhà mái Nhật 1 tầng

Mặt tiền sang trọng nhưng không phô trương

Phần sảnh chính được nhấn mạnh bằng cặp cột vuông ốp đá granite tối màu, tạo thế vững chãi, kết hợp cùng bậc tam cấp cao ráo giúp ngôi nhà luôn khang trang và nổi bật. Tông màu chủ đạo trắng – nâu – ghi sáng được phối tinh tế, vừa giữ nét hiện đại vừa gần gũi với thiên nhiên, đúng tinh thần của phong cách mái Nhật.

Cửa kính và tiểu cảnh mang ánh sáng và sức sống vào nhà

Toàn bộ hệ cửa sổ sử dụng nhôm kính xingfa giúp đón sáng tự nhiên, mở rộng tầm nhìn ra khu vườn xanh mát quanh nhà. Tiểu cảnh cây xanh được bố trí khéo léo ở các góc tường tạo điểm nhấn sinh động, đem đến sự cân bằng giữa kiến trúc và thiên nhiên.

Không gian sống tiện nghi & tinh tế trong ngôi nhà mái Nhật 1 tầng

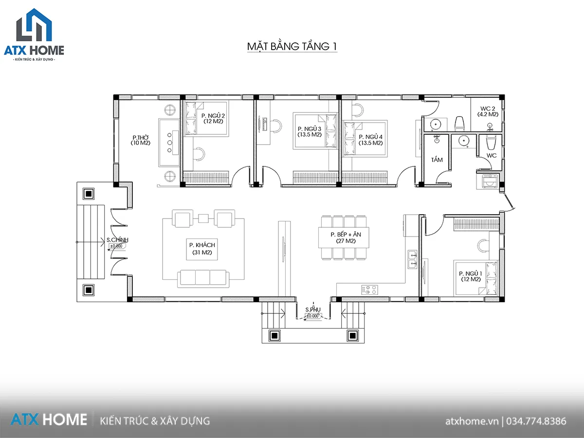
Mặt bằng công năng – Không gian sống tiện nghi cho gia đình 3 thế hệ

Cách bố trí mặt bằng của ngôi nhà được tính toán tỉ mỉ để đáp ứng nhu cầu sinh hoạt của một gia đình đông người nhưng vẫn đảm bảo riêng tư, thoáng sáng và kết nối.

Không gian sống tiện nghi & tinh tế trong ngôi nhà mái Nhật 1 tầng

Phòng khách 31m² được đặt ngay trung tâm là không gian kết nối mọi thành viên trong gia đình. Cửa lớn mở ra sảnh chính, đón trọn ánh sáng và gió trời, mang lại cảm giác thoải mái, rộng rãi khi bước vào.

Kề ngay đó là phòng thờ 10m² thiết kế trang trọng, hướng ra mặt tiền giúp không gian tâm linh vừa yên tĩnh vừa hòa hợp phong thủy.

Khu vực bếp  ăn (27m²) được bố trí tách biệt với không gian khách, có lối đi phụ ra sân sau tiện cho việc nấu nướng, giặt giũ và đảm bảo không ám mùi trong nhà. Không gian rộng rãi đủ để cả gia đình quây quần trong những bữa cơm ấm cúng.

Ngôi nhà có 4 phòng ngủ, được bố trí dọc hai bên, tận dụng tối đa ánh sáng tự nhiên:

  • Phòng ngủ 1 và 2 (12m²): gọn gàng, thoáng mát, phù hợp cho con cái.

  • Phòng ngủ 3 và 4 (13.5m²): diện tích lớn hơn, có cửa sổ mở ra sân, mang đến cảm giác riêng tư và dễ chịu cho người lớn tuổi. Đặc biệt phòng ngủ 4 có WC riêng tạo ra sự thuận tiện.

Khu vệ sinh kép được bố trí cuối nhà – tách biệt hợp lý, dễ sử dụng mà vẫn đảm bảo tính thẩm mỹ và sạch sẽ.

Tổng thể mặt bằng thể hiện rõ tư duy thiết kế thực tế, khoa học, vừa đảm bảo công năng sử dụng vừa tạo nên một không gian sống hài hòa, tiện nghi và dễ chịu.

Không gian sống tiện nghi & tinh tế trong ngôi nhà mái Nhật 1 tầng

ATX HOME – Thiết kế và thi công uy tín, đồng hành cùng gia chủ trong từng công trình

Với nhiều kinh nghiệm trong lĩnh vực thiết kế và thi công nhà ở dân dụng, ATX HOME luôn được khách hàng tin tưởng nhờ sự chuyên nghiệp, tận tâm và cam kết chất lượng trong từng chi tiết.

Chúng tôi hiểu rằng, một ngôi nhà không chỉ là nơi ở mà còn là thành quả của cả quá trình tích lũy và ấp ủ của gia chủ. Vì vậy, mỗi bản thiết kế của ATX HOME đều được nghiên cứu kỹ lưỡng – đảm bảo công năng hợp lý, thẩm mỹ hài hòa và tối ưu chi phí thi công.

Bên cạnh đó, quy trình thi công được kiểm soát chặt chẽ từ vật liệu, kỹ thuật đến tiến độ, giúp khách hàng an tâm về chất lượng và tiết kiệm ngân sách tối đa mà vẫn có được ngôi nhà bền đẹp, đúng như mong muốn ban đầu.

ATX HOME không chỉ mang đến bản thiết kế ưng ý, mà còn hiện thực hóa tổ ấm mơ ước của bạn bằng uy tín và trách nhiệm nghề nghiệp.

Liên hệ ATX HOME:

📞 Hotline: 034.774.8386

📘 Facebook: Công ty TNHH Kiến trúc & Xây dựng ATX HOME

🌐 Website: atxhome.vn

Đánh giá