Chiêm ngưỡng nhà mái bằng 3 tầng đơn giản mà sang trọng khó rời mắt
- Diện tích: 240 m²
- Phòng ngủ: 5
- Số tầng: 3
- Tầng hầm: 0
- Khách hàng: Chị Trang
- Địa chỉ: Hưng Yên
- Chi phí xây dựng: 1,6 tỷ
- Tổng chi phí: 2,1 tỷ
Mô tả dự án
Ngôi nhà 3 tầng mái bằng của chị Trang tại Hưng Yên là minh chứng rõ ràng cho xu hướng thiết kế hiện đại, tối giản nhưng đầy tinh tế. Công trình không chỉ thể hiện gu thẩm mỹ thời thượng mà còn khẳng định sự tính toán kỹ lưỡng trong công năng, mang lại trải nghiệm sống tiện nghi và thoải mái cho cả gia đình.

Kiến trúc hiện đại tinh gọn nhưng nổi bật
Ngôi nhà của chị Trang gây ấn tượng ngay từ ánh nhìn đầu tiên với phong cách hiện đại, hình khối vuông vức và đường nét rõ ràng. Tông màu trắng sáng kết hợp ghi xám và vật liệu ốp đá tự nhiên tạo nên vẻ sang trọng mà vẫn tinh tế.
Hệ ban công kính cường lực và lam gỗ điểm xuyết khéo léo giúp tổng thể mặt tiền trở nên nhẹ nhàng, thanh thoát và gần gũi hơn với thiên nhiên. Bên cạnh đó, mái bằng kết hợp viền trần đèn led âm mang đến cảm giác hiện đại, giúp công trình nổi bật cả khi đêm xuống.
Thiết kế này đặc biệt phù hợp với những gia chủ yêu thích sự đơn giản, trẻ trung nhưng không kém phần bề thế.


Giải pháp công năng tối ưu cho cuộc sống gia đình
Mỗi tầng trong ngôi nhà đều được ATX HOME bố trí hợp lý, đảm bảo tối đa công năng và sự riêng tư cho từng thành viên trong gia đình.
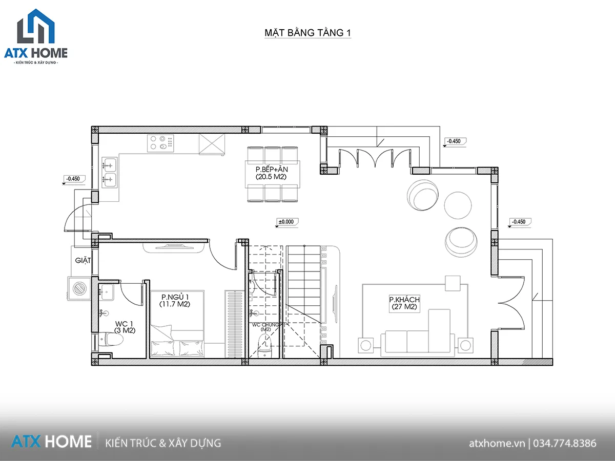
Tầng 1 – Không gian sinh hoạt chung rộng mở
Tầng 1 được thiết kế với phòng khách 27m² liền kề bếp ăn 20,5m², tạo nên một không gian mở kết nối các thành viên. Phòng ngủ nhỏ (11,7m²) được bố trí phía sau, yên tĩnh và thuận tiện cho người lớn tuổi. Khu vệ sinh và giặt phơi được bố trí gọn gàng, đảm bảo công năng mà vẫn tối ưu diện tích sử dụng.

Tầng 2 – Không gian nghỉ ngơi thoáng sáng
Hai phòng ngủ rộng (22m² mỗi phòng) cùng khu sinh hoạt chung 6,5m² mang đến không gian riêng tư nhưng vẫn gần gũi. Mỗi phòng đều có cửa sổ và ban công riêng, tận dụng tối đa ánh sáng và gió tự nhiên, giúp không gian luôn thông thoáng.

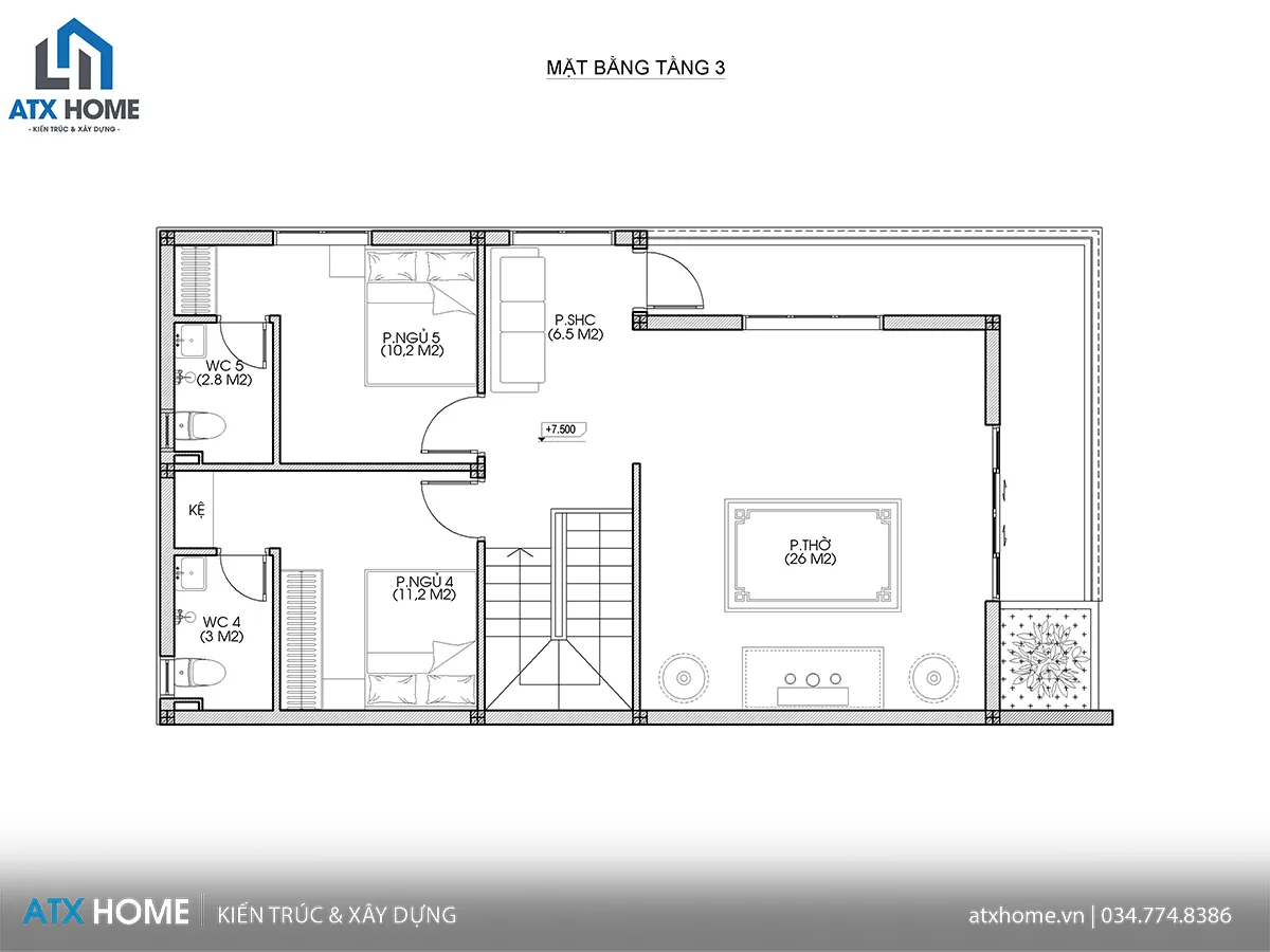
Tầng 3 – Phong thủy và sự kết nối cảm xúc
Tầng 3 là nơi thể hiện sự chỉn chu trong thiết kế với phòng thờ rộng 26m² đặt ở vị trí cao nhất, trang trọng và hợp phong thủy. Cùng với đó là hai phòng ngủ phụ, khu sinh hoạt chung và sân phơi gọn gàng, đáp ứng đầy đủ nhu cầu sinh hoạt hàng ngày.

Nhà mái bằng – Lựa chọn bền vững và thời thượng
Trong xu hướng hiện đại, nhà mái bằng đang trở thành lựa chọn hàng đầu bởi sự tối ưu về công năng, chi phí và tính thẩm mỹ. Không chỉ dễ thi công, bảo trì, kiểu mái này còn giúp gia chủ có thể tận dụng không gian trên mái để lắp đặt năng lượng mặt trời, làm sân phơi hay khu thư giãn.
Mẫu nhà của chị Trang là ví dụ điển hình cho phong cách kiến trúc hiện đại kết hợp tư duy thực tế, vừa đẹp, vừa bền, vừa phù hợp với điều kiện sống tại Việt Nam.

ATX HOME – Làm thật, chất lượng thật
Khác với nhiều đơn vị chỉ chú trọng hình ảnh, ATX HOME tập trung vào chất lượng thực tế của công trình. Chúng tôi hiểu rằng, một bản vẽ đẹp chỉ có ý nghĩa khi được thi công chuẩn kỹ thuật, bền vững theo thời gian.
Với đội ngũ kiến trúc sư, kỹ sư và giám sát có chuyên môn cao, ATX HOME luôn làm việc dựa trên 3 nguyên tắc:
-
Thiết kế thực tế, tối ưu cho công năng sử dụng.
-
Thi công chuẩn kỹ thuật, đúng tiến độ, đúng chi phí.
-
Đồng hành cùng khách hàng đến khi hoàn thiện tổ ấm.
Mỗi công trình bàn giao là một cam kết về uy tín và chất lượng, được kiểm chứng qua hàng trăm ngôi nhà. Nếu bạn đang tìm kiếm một mẫu nhà 3 tầng hiện đại, tiện nghi và phù hợp ngân sách? Hãy liên hệ ngay ATX HOME theo số hotline 034.774.8386 để được tư vấn miễn phí – thiết kế trọn gói – thi công tận tâm, đảm bảo ngôi nhà đẹp, bền, đúng như mong đợi của bạn.

