Mẫu nhà mái Thái 2 tầng – Giải pháp tối ưu cho nhà ống dài 21m

  • Diện tích: 210 m²
  • Phòng ngủ: 4
  • Số tầng: 2
  • Tầng hầm: 0
  • Khách hàng: Anh Quý
  • Địa chỉ: Lạng Sơn
  • Chi phí xây dựng: 1,34tỷ
  • Tổng chi phí: 1,7 tỷ

Mô tả dự án

Giữa vùng đất Lạng Sơn yên bình, ngôi nhà 2 tầng mái Thái của anh Quý nổi bật với dáng vẻ bề thế, thanh thoát và chuẩn phong cách tân cổ điển. Thiết kế không chỉ đẹp mắt mà còn tận dụng triệt để diện tích lô đất dài 21m, mang lại không gian sống tiện nghi cho cả gia đình.

Mẫu nhà mái Thái 2 tầng - Giải pháp tối ưu cho nhà ống dài 21m

Phối cảnh kiến trúc phong cách tân cổ điển cùng mái Thái thanh lịch

Công trình gây ấn tượng mạnh ngay từ cái nhìn đầu tiên nhờ kiến trúc tân cổ điển nhẹ nhàng, kết hợp hài hòa cùng mái Thái dốc màu xanh than sang trọng. Mặt tiền được thiết kế đối xứng, các chi tiết phào chỉ trang trí tinh tế, kết hợp với hệ cột vuông tầng 1 và cột tròn tầng 2, lan can hoa văn mạ vàng, giúp ngôi nhà trở nên uy nghi mà vẫn giữ được nét mềm mại, thanh nhã.

Điểm đặc biệt của công trình nằm ở tỷ lệ hình khối hoàn hảo, tận dụng tối đa lợi thế chiều sâu 21m để tạo nên hình khối nhà vừa thon gọn vừa thoáng sáng. Hệ cửa kính khung nhôm đen giúp không gian nội thất luôn ngập tràn ánh sáng tự nhiên, đồng thời tăng hiệu ứng sang trọng cho tổng thể công trình.

Mái Thái là điểm nhấn không thể bỏ qua vừa mang tính thẩm mỹ cao, vừa có khả năng chống nóng, thoát nước hiệu quả. Thiết kế mái xếp tầng tạo độ cao ấn tượng, giúp công trình trở nên cân đối và hài hòa với kiến trúc tổng thể.

Mẫu nhà mái Thái 2 tầng - Giải pháp tối ưu cho nhà ống dài 21m

Giải pháp tối ưu cho nhà ống dài 21m

Nhà ống với chiều sâu lớn thường gặp vấn đề thiếu sáng, thiếu gió và công năng kém linh hoạt. Tuy nhiên, ATX HOME đã xử lý triệt để bài toán này bằng giải pháp phân tầng và lấy sáng thông minh.

Ở công trình của anh Quý, kiến trúc sư bố trí cầu thang giữa nhà, kết hợp ô thông tầng giúp toàn bộ không gian được lưu thông không khí và ánh sáng tự nhiên. Mỗi khu vực chức năng được sắp xếp liền mạch từ phòng khách, bếp ăn đến khu ngủ, tạo cảm giác rộng rãi, thông suốt mà vẫn đảm bảo riêng tư.

Bên cạnh đó, việc tận dụng ban công và sân thượng ở cả hai đầu nhà giúp công trình “thở” tốt hơn, cân bằng ánh sáng và nhiệt độ, đồng thời tăng giá trị thẩm mỹ cho toàn bộ mặt tiền. Giải pháp này không chỉ phù hợp với lô đất của anh Quý mà còn là hướng đi lý tưởng cho mọi mẫu nhà ống dài, nhà phố hẹp hiện nay.

Mẫu nhà mái Thái 2 tầng - Giải pháp tối ưu cho nhà ống dài 21m

Mặt bằng công năng tầng 1 tiện nghi và khoa học

Tầng 1 được thiết kế tối ưu cho sinh hoạt hàng ngày, với các không gian liên kết mạch lạc:

  • Phòng khách (21m²): Bố trí phía trước, sang trọng và rộng rãi, là nơi đón tiếp khách và quây quần cùng gia đình.

  • Phòng bếp + ăn (17.5m²): Nối tiếp với phòng khách, tạo sự liên kết không gian, thuận tiện cho sinh hoạt chung.

  • Phòng ngủ 1 (13.2m²) và Phòng ngủ 2 (11.5m²): Bố trí hợp lý, phù hợp cho người lớn tuổi và con nhỏ. Trong đó phòng ngủ 1 có WC khép kín rất thuận tiện cho người lớn tuổi.

  • WC riêng biệt (5.1m²): Đảm bảo sự tiện lợi và riêng tư cho các thành viên.

Việc chia tách rõ ràng giữa khu vực sinh hoạt chung và khu nghỉ ngơi giúp ngôi nhà luôn gọn gàng, ngăn nắp và dễ dàng lưu thông.

Mẫu nhà mái Thái 2 tầng

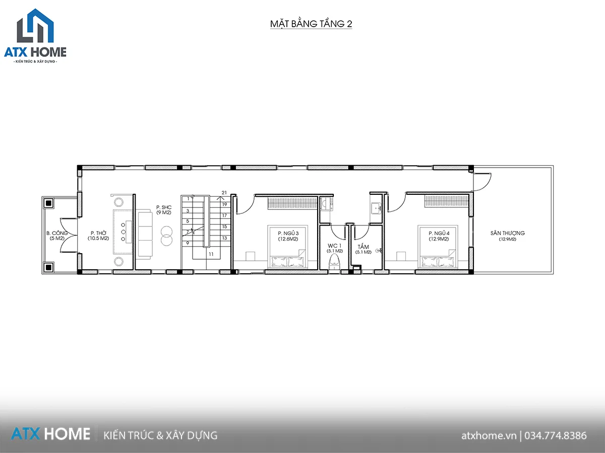
Mặt bằng công năng tầng 2 riêng tư, yên bình

Tầng 2 được bố trí hợp lý, hướng đến sự thoải mái và thư giãn:

  • Phòng thờ (10.5m²): Đặt ở vị trí cao ráo, trang trọng, hướng ra ban công 5m² đúng chuẩn phong thủy.

  • Phòng sinh hoạt chung (9m²): Không gian gắn kết gia đình, thích hợp cho những buổi trò chuyện thân mật.

  • Phòng ngủ 3 (12m²) và Phòng ngủ 4 (12.9m²): Rộng rãi, thoáng mát, mỗi phòng đều có cửa sổ lớn lấy sáng tự nhiên.

  • WC + phòng tắm riêng biệt: Giúp việc sinh hoạt trở nên thuận tiện, sạch sẽ và khoa học.

  • Sân thượng (12.9m²): Là nơi lý tưởng để trồng cây, phơi đồ hoặc thư giãn, ngắm cảnh.

Mẫu nhà mái Thái 2 tầng

Ưu điểm nổi bật của thiết kế mái Thái trong ngôi nhà của anh Quý

  • Tản nhiệt và chống ẩm cực tốt: Giúp không gian trong nhà luôn mát mẻ vào mùa hè và khô ráo mùa mưa.

  • Tăng tính thẩm mỹ: Mái xếp lớp tạo cảm giác bề thế, thanh thoát.

  • Hợp phong thủy: Dáng mái cao giúp tụ khí, mang lại vượng khí và may mắn cho gia chủ.

  • Độ bền cao: Mái ngói Thái có tuổi thọ lâu dài, chịu thời tiết khắc nghiệt tốt.

Mẫu nhà mái Thái 2 tầng - Giải pháp tối ưu cho nhà ống dài 21m

ATX HOME – Kiến tạo không gian sống sang trọng, chuẩn phong cách

Với mỗi công trình, ATX HOME không chỉ dừng lại ở việc thiết kế một ngôi nhà đẹp mà còn chú trọng từng chi tiết về phong thủy, công năng và cảm xúc sống của gia chủ. Ngôi nhà của anh Quý là minh chứng cho sự tận tâm và chuyên nghiệp của đội ngũ ATX HOME – nơi mọi bản vẽ đều được tính toán tỉ mỉ để mang lại giá trị sống trọn vẹn cho từng gia đình.

Bạn đang tìm kiếm mẫu nhà mái Thái sang trọng, tối ưu diện tích và chuẩn phong thủy như anh Quý tại Lạng Sơn? Hãy liên hệ ngay ATX HOME theo số hotline 034.774.8386 để được kiến trúc sư tư vấn bản vẽ, báo giá rõ ràng và giải pháp thiết kế phù hợp ngân sách!

Đánh giá